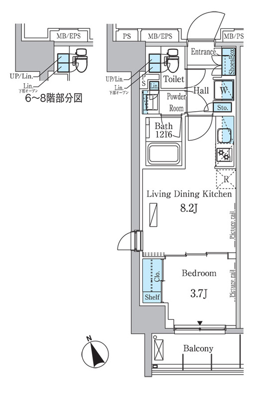
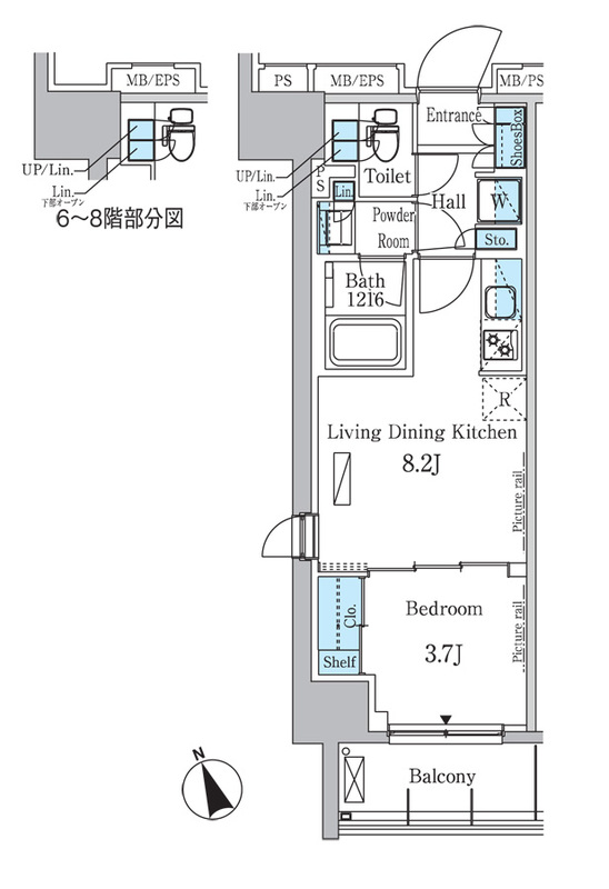
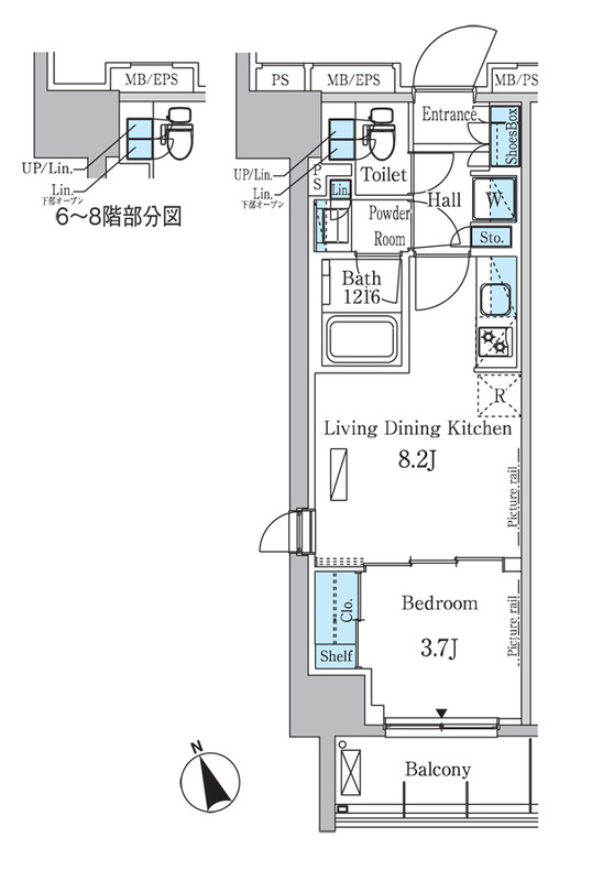
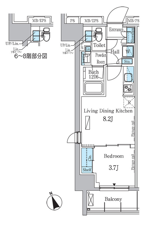
浅草スカイレジテル(東京都台東区西浅草2丁目)の建物情報
浅草スカイレジテル 賃貸物件基本情報
このページの情報は広告情報ではありません。過去から現在までCHINTAIネットに掲載のあった物件情報を元に作成した参考ページです。
| 交通 |
山手線/上野駅
徒歩19分
都営浅草線/浅草橋駅 徒歩10分 東武伊勢崎線・スカイツリーライン/浅草駅 徒歩12分 銀座線/浅草駅 徒歩12分 都営浅草線/浅草駅 徒歩12分 銀座線/田原町駅 徒歩7分 銀座線/稲荷町駅 徒歩13分 日比谷線/入谷駅 徒歩18分 都営浅草線/蔵前駅 徒歩16分 都営大江戸線/蔵前駅 徒歩13分 都営大江戸線/新御徒町駅 徒歩19分 つくばエクスプレス/浅草駅 徒歩7分 |
|---|---|
| 駐車場 | 駐車場なし |
| 環境 |
3駅利用可
/
3沿線駅利用可
/
平坦地
/
駅まで平坦
※部屋・階数により設備が異なる場合がございます。 |
| 建物設備 |
オートロック
/
エレベーター
/
敷地内ごみ置き場
/
都市ガス
/
電気
/
公営上水道
/
下水道
※部屋・階数により設備が異なる場合がございます。 |
浅草スカイレジテル周辺の空室物件
台東区周辺が得意な不動産店舗
株式会社エイブル浅草橋店
- オススメ
オススメポイント 都心と下町が融合した街、浅草橋
- 交通
- 総武線/浅草橋駅
- 所在地
- 東京都台東区浅草橋1-9-13第111東京ビル3F
- 仲介手数料家賃の55%以下
- 駅から徒歩3分以内
- 多店舗展開
- 年中無休
掲載物件数:
1177
件
- 得意駅
- 浅草橋駅 浅草橋駅 押上駅 蔵前駅 浅草駅 他
- 得意エリア
- 台東区 千代田区 中央区 墨田区 江東区 他
03-5833-8871
