T・K TOWER(香川県高松市松島町1丁目)の建物情報
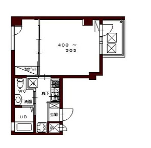
T・K TOWER 賃貸物件基本情報
このページの情報は広告情報ではありません。過去から現在までCHINTAIネットに掲載のあった物件情報を元に作成した参考ページです。
| 交通 |
高徳線/栗林駅
徒歩17分
高松琴平電気鉄道<ことでん琴平線>/瓦町駅 徒歩11分 高松琴平電気鉄道<ことでん志度線>/今橋駅 徒歩4分 高松琴平電気鉄道<ことでん志度線>/松島二丁目駅 徒歩9分 高松琴平電気鉄道<ことでん長尾線>/花園駅 徒歩10分 |
|---|---|
| 駐車場 | 駐車場なし |
| 環境 |
2駅利用可
/
3沿線駅利用可
※部屋・階数により設備が異なる場合がございます。 |
| 建物設備 |
オートロック
/
宅配ボックス
/
防犯カメラ
/
セキュリティー会社加入済
/
エレベーター
/
LPガス
/
電気
/
公営上水道
/
下水道
/
駐輪場
/
バイク置場
※部屋・階数により設備が異なる場合がございます。 |
T・K TOWER周辺の空室物件
高松市周辺が得意な不動産店舗
オススメポイント お客様の様々なニーズに幅広く対応!土・日も、もちろん営業!
- 交通
- 高徳線/木太町駅
- 所在地
- 香川県高松市春日町466-7
- 多店舗展開
- 年中無休
- 開店10年以上
- 駅まで車で送迎可
掲載物件数:
2734
件
- 得意駅
- 木太東口駅 元山駅 林道駅 木太町駅 屋島駅 他
- 得意エリア
- 高松市 丸亀市 坂出市 さぬき市 東かがわ市 他
087-813-9330
