T・K TOWER(香川県高松市松島町1丁目)の建物情報
掲載中の賃貸物件は1件あります!
T・K TOWER 賃貸物件基本情報
| 交通 |
高松琴平電気鉄道<ことでん琴平線>/瓦町駅
徒歩11分
高松琴平電気鉄道<ことでん志度線>/今橋駅 徒歩3分 高松琴平電気鉄道<ことでん志度線>/松島二丁目駅 徒歩9分 |
|---|---|
| 駐車場 | 駐車場なし |
| 環境 |
2駅利用可
/
2沿線利用可
※部屋・階数により設備が異なる場合がございます。 |
| 建物設備 |
オートロック
/
宅配ボックス
/
セキュリティー会社加入済
/
エレベーター
/
LPガス
※部屋・階数により設備が異なる場合がございます。 |
T・K TOWER 賃貸物件の空室情報
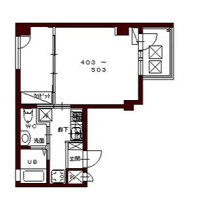
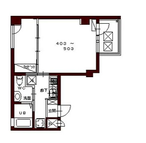
| 間取図 | 家賃 管理費等 |
敷金/保証金 礼金/償却 |
間取り 専有面積 |
方位物件 階層 |
詳細を見る お問い合わせする |
|---|---|---|---|---|---|
|
|
5.6万円 6,000円 |
なし/-- なし/-- |
1K 37㎡ |
北 5階 |
T・K TOWER周辺の空室物件
T・K TOWER周辺が得意な不動産店舗
オススメポイント 高松駅から徒歩2分!駅から一番近くのエイブルのお店です☆
- 交通
- 高徳線/高松駅 高松琴平電気鉄道<ことでん琴平線>/高松築港駅
- 所在地
- 香川県高松市西の丸町1-1
- 多店舗展開
- 駅まで車で送迎可
- 駅から徒歩3分以内
- 年中無休
掲載物件数:
702
件
- 得意駅
- 高松駅 栗林駅 屋島駅 瓦町駅 片原町駅 他
- 得意エリア
- 高松市 丸亀市 坂出市 善通寺市 三豊市 他
087-811-3700
