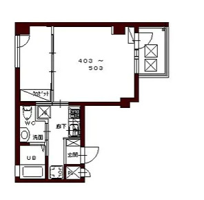
コート松福Ⅱ(香川県高松市松島町1丁目)の建物情報
コート松福Ⅱ 賃貸物件基本情報
このページの情報は広告情報ではありません。過去から現在までCHINTAIネットに掲載のあった物件情報を元に作成した参考ページです。
| 交通 |
高松琴平電気鉄道<ことでん琴平線>/瓦町駅
徒歩9分
高松琴平電気鉄道<ことでん長尾線>/瓦町駅 徒歩9分 高松琴平電気鉄道<ことでん志度線>/今橋駅 徒歩2分 高松琴平電気鉄道<ことでん志度線>/松島二丁目駅 徒歩7分 |
|---|---|
| 駐車場 | 駐車場なし |
| 環境 |
駅前
※部屋・階数により設備が異なる場合がございます。 |
| 建物設備 |
集合郵便受け
/
LPガス
/
公営上水道
※部屋・階数により設備が異なる場合がございます。 |
コート松福Ⅱ周辺の空室物件
高松市周辺が得意な不動産店舗
オススメポイント 高松駅から徒歩2分!駅から一番近くのエイブルのお店です☆
- 交通
- 高徳線/高松駅 高松琴平電気鉄道<ことでん琴平線>/高松築港駅
- 所在地
- 香川県高松市西の丸町1-1
- 多店舗展開
- 駅まで車で送迎可
- 駅から徒歩3分以内
- 年中無休
掲載物件数:
2925
件
- 得意駅
- 高松駅 栗林駅 屋島駅 瓦町駅 片原町駅 他
- 得意エリア
- 高松市 丸亀市 坂出市 善通寺市 三豊市 他
087-811-3700
