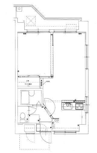
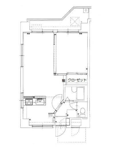
月光霞町(広島県福山市霞町3丁目)の建物情報
月光霞町 賃貸物件基本情報
このページの情報は広告情報ではありません。過去から現在までCHINTAIネットに掲載のあった物件情報を元に作成した参考ページです。
| 交通 |
山陽本線(中国)/福山駅
徒歩12分
山陽新幹線(中国・九州)/福山駅 徒歩12分 福塩線/福山駅 徒歩12分 |
|---|---|
| 駐車場 | 駐車場なし |
| 環境 |
--
※部屋・階数により設備が異なる場合がございます。 |
| 建物設備 |
オートロック
/
宅配ボックス
/
敷地内ごみ置き場
/
LPガス
/
電気
/
公営上水道
/
下水道
/
駐輪場
※部屋・階数により設備が異なる場合がございます。 |
月光霞町周辺の空室物件
福山市周辺が得意な不動産店舗
株式会社アークスエイブルネットワーク福山蔵王店
- オススメ
- キャンペーン
オススメポイント お部屋探しはエイブル^^ゆめタウン蔵王を西へ緑の看板が目印♪
- 交通
- 山陽本線(中国)/福山駅
- 所在地
- 広島県福山市南蔵王町2丁目18-23
- 多店舗展開
- 駅まで車で送迎可
- 駐車場有
- 社宅・寮対応物件あり
- キャンペーン
- キャンペーン実施中!
掲載物件数:
1039
件
- 得意駅
- 東福山駅 福山駅 大門駅 笠岡駅 備後赤坂駅 他
- 得意エリア
- 福山市 尾道市 府中市 笠岡市 井原市 他
084-982-8991
