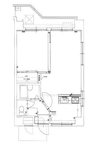
シャングリラ霞(広島県福山市霞町2丁目)の建物情報
シャングリラ霞 賃貸物件基本情報
このページの情報は広告情報ではありません。過去から現在までCHINTAIネットに掲載のあった物件情報を元に作成した参考ページです。
| 交通 |
山陽本線(中国)/福山駅
徒歩11分
山陽新幹線(中国・九州)/福山駅 徒歩11分 福塩線/福山駅 徒歩11分 山陽本線(中国)/東福山駅 徒歩58分 山陽本線(中国)/備後赤坂駅 徒歩29分 福塩線/備後本庄駅 徒歩30分 |
|---|---|
| 駐車場 | 駐車場あり |
| 環境 |
2駅利用可
/
2沿線利用可
※部屋・階数により設備が異なる場合がございます。 |
| 建物設備 |
オートロック
/
防犯カメラ
/
エレベーター
/
LPガス
/
電気
/
公営上水道
/
下水道
/
駐輪場
※部屋・階数により設備が異なる場合がございます。 |
シャングリラ霞周辺の空室物件
福山市周辺が得意な不動産店舗
株式会社アークスエイブルネットワーク福山駅前店
- オススメ
- キャンペーン
オススメポイント お部屋探しはエイブル^^福山駅すぐ近く緑の看板が目印♪
- 交通
- 山陽本線(中国)/福山駅
- 所在地
- 広島県福山市三之丸町4-15 1F
- 多店舗展開
- 年中無休
- 駅直結
- 開店10年以上
- キャンペーン
- キャンペーン実施中!
掲載物件数:
2670
件
- 得意駅
- 福山駅 松永駅 東福山駅 尾道駅
- 得意エリア
- 福山市 尾道市 府中市
084-999-1012
