アーバンプレイス方南町Ⅱ(東京都中野区南台5丁目)の建物情報
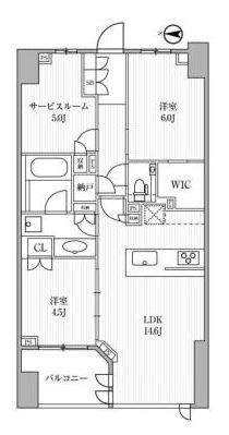
アーバンプレイス方南町Ⅱ 賃貸物件基本情報
このページの情報は広告情報ではありません。過去から現在までCHINTAIネットに掲載のあった物件情報を元に作成した参考ページです。
| 交通 |
京王線・京王新線/笹塚駅
徒歩17分
京王井の頭線/永福町駅 徒歩27分 丸ノ内線/方南町駅 徒歩4分 |
|---|---|
| 駐車場 | 駐車場なし |
| 環境 |
2駅利用可
/
3沿線駅利用可
/
閑静な住宅地
/
平坦地
※部屋・階数により設備が異なる場合がございます。 |
| 建物設備 |
オートロック
/
敷地内ごみ置き場
/
都市ガス
/
電気
/
公営上水道
/
下水道
/
駐輪場
※部屋・階数により設備が異なる場合がございます。 |
アーバンプレイス方南町Ⅱ周辺の空室物件
中野区周辺が得意な不動産店舗
株式会社エイブル東中野店
- オススメ
オススメポイント 【お客様へ安心安全なお部屋探し環境の提供を第一に営業中です】
- 交通
- 総武線/東中野駅
- 所在地
- 東京都中野区東中野3-1-20不二園ビル2F
- 駅から徒歩3分以内
- 仲介手数料家賃の55%以下
- 多店舗展開
- 年中無休
掲載物件数:
263
件
- 得意駅
- 東中野駅 大久保駅 下落合駅 方南町駅 落合駅 他
- 得意エリア
- 中野区 杉並区 新宿区 渋谷区 目黒区 他
03-5925-1533
