アライハイツ(東京都中野区南台5丁目)の建物情報
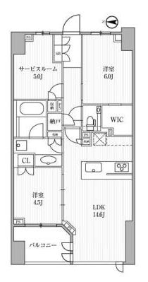
アライハイツ 賃貸物件基本情報
このページの情報は広告情報ではありません。過去から現在までCHINTAIネットに掲載のあった物件情報を元に作成した参考ページです。
| 交通 |
京王線・京王新線/笹塚駅
徒歩17分
丸ノ内線/中野富士見町駅 徒歩15分 丸ノ内線/方南町駅 徒歩3分 |
|---|---|
| 駐車場 | 駐車場なし |
| 環境 |
--
※部屋・階数により設備が異なる場合がございます。 |
| 建物設備 |
都市ガス
/
灯油ボイラー
/
電気
/
公営上水道
/
下水道
※部屋・階数により設備が異なる場合がございます。 |
アライハイツ周辺の空室物件
中野区周辺が得意な不動産店舗
株式会社エイブル中野店
- オススメ
オススメポイント 気に入るお部屋が見つかるまでトコトンお探し致します♪
- 交通
- 中央線/中野駅
- 所在地
- 東京都中野区中野2-24-9ナカノサウステラ レジデンス棟2F
- 多店舗展開
- 女性スタッフ対応
- 仲介手数料家賃の55%以下
- 駅から徒歩3分以内
掲載物件数:
254
件
- 得意駅
- 中野駅 中野坂上駅 東高円寺駅 高円寺駅 阿佐ケ谷駅 他
- 得意エリア
- 中野区 新宿区 世田谷区 渋谷区 杉並区 他
03-3380-8126
