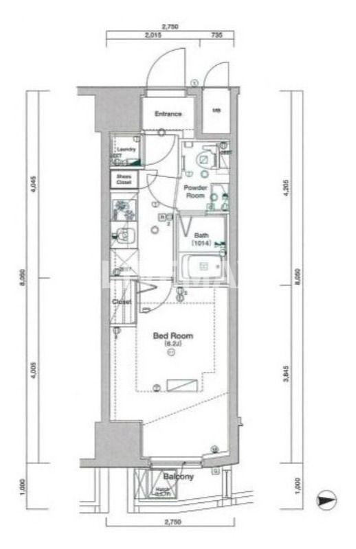
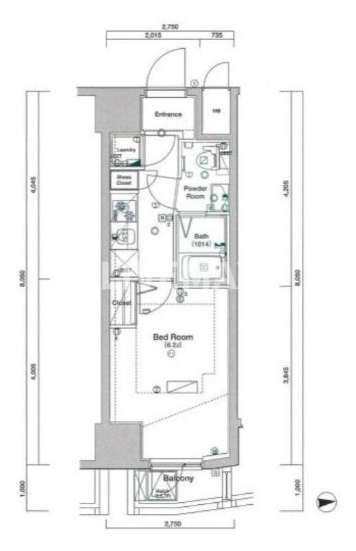
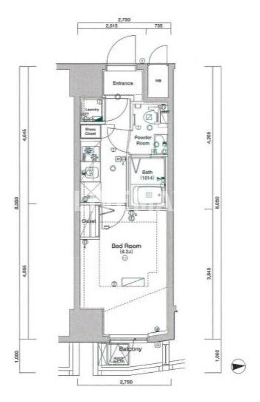
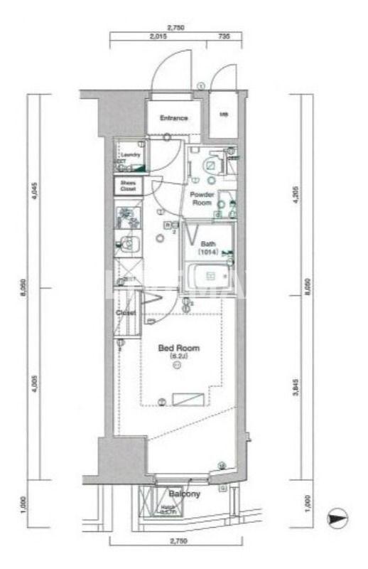
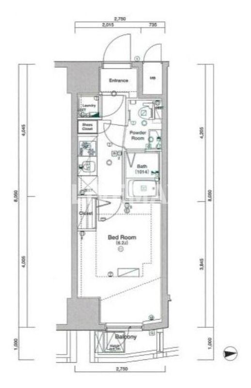
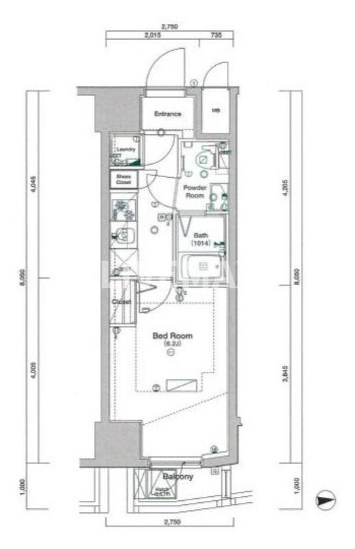
亀戸駅 徒歩2分 1K マンション(東京都江東区亀戸5丁目)の建物情報
亀戸駅 徒歩2分 1K マンション 賃貸物件基本情報
このページの情報は広告情報ではありません。過去から現在までCHINTAIネットに掲載のあった物件情報を元に作成した参考ページです。
| 交通 |
総武線/亀戸駅
徒歩2分
東武亀戸線/亀戸駅 徒歩2分 都営新宿線/西大島駅 徒歩13分 |
|---|---|
| 駐車場 | 駐車場なし |
| 環境 |
3駅利用可
/
3沿線駅利用可
/
文教地区
/
駅前
/
平坦地
/
駅まで平坦
※部屋・階数により設備が異なる場合がございます。 |
| 建物設備 |
オートロック
/
防犯カメラ
/
エレベーター1基
/
敷地内ごみ置き場
/
集合郵便受け
/
都市ガス
/
電気
/
公営上水道
/
下水道
※部屋・階数により設備が異なる場合がございます。 |
亀戸駅 徒歩2分 1K マンション周辺の空室物件
江東区周辺が得意な不動産店舗
株式会社エイブル森下店
- オススメ
オススメポイント 夢を現実に!皆様の夢を叶えてみせます。
- 交通
- 都営新宿線/森下駅
- 所在地
- 東京都江東区森下1-13-12小倉屋ビル1F
- 駅から徒歩3分以内
- 仲介手数料家賃の55%以下
- 多店舗展開
- 年中無休
掲載物件数:
1330
件
- 得意駅
- 森下駅 清澄白河駅 森下駅 両国駅 菊川駅 他
- 得意エリア
- 江東区 墨田区 江戸川区 千代田区 中央区 他
03-3634-8126
