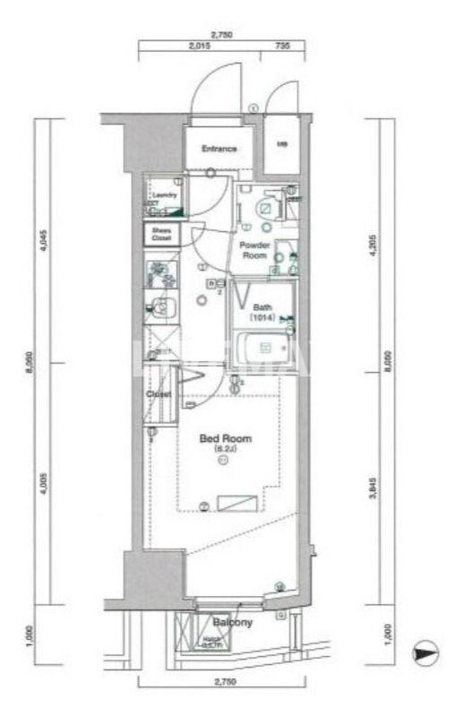
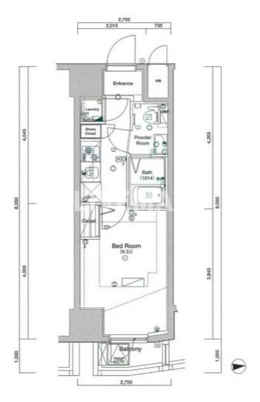
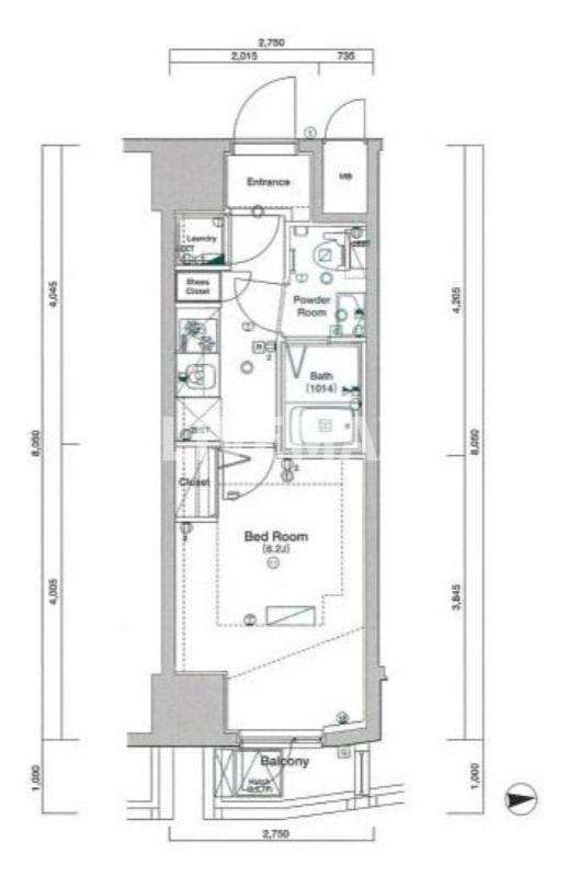
ONE’s RESIDENCE KAMEIDO(東京都江東区亀戸5丁目)の建物情報
ONE’s RESIDENCE KAMEIDO 賃貸物件基本情報
このページの情報は広告情報ではありません。過去から現在までCHINTAIネットに掲載のあった物件情報を元に作成した参考ページです。
| 交通 |
総武線/錦糸町駅
徒歩18分
半蔵門線/錦糸町駅 徒歩17分 総武線/亀戸駅 徒歩4分 東武亀戸線/亀戸水神駅 徒歩9分 都営新宿線/西大島駅 徒歩17分 |
|---|---|
| 駐車場 | 駐車場なし |
| 環境 |
3駅利用可
/
3沿線駅利用可
※部屋・階数により設備が異なる場合がございます。 |
| 建物設備 |
オートロック
/
宅配ボックス
/
防犯カメラ
/
エレベーター
/
敷地内ごみ置き場
/
都市ガス
/
電気
/
公営上水道
/
下水道
※部屋・階数により設備が異なる場合がございます。 |
ONE’s RESIDENCE KAMEIDO周辺の空室物件
江東区周辺が得意な不動産店舗
株式会社エイブル森下店
- オススメ
オススメポイント 夢を現実に!皆様の夢を叶えてみせます。
- 交通
- 都営新宿線/森下駅
- 所在地
- 東京都江東区森下1-13-12小倉屋ビル1F
- 駅から徒歩3分以内
- 仲介手数料家賃の55%以下
- 多店舗展開
- 年中無休
掲載物件数:
1363
件
- 得意駅
- 森下駅 清澄白河駅 森下駅 両国駅 菊川駅 他
- 得意エリア
- 江東区 墨田区 江戸川区 千代田区 中央区 他
03-3634-8126
