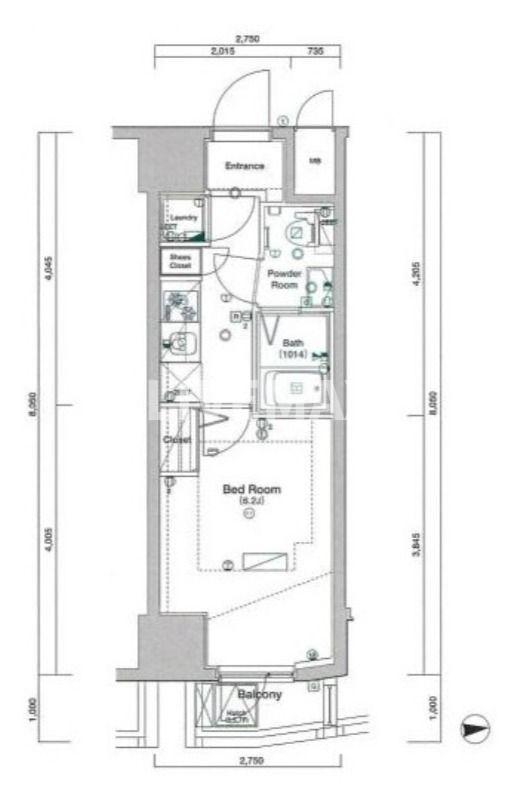
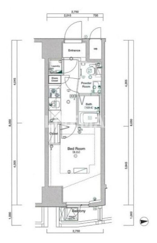
ヴォーガコルテ亀戸駅前(東京都江東区亀戸5丁目)の建物情報
ヴォーガコルテ亀戸駅前 賃貸物件基本情報
このページの情報は広告情報ではありません。過去から現在までCHINTAIネットに掲載のあった物件情報を元に作成した参考ページです。
| 交通 |
総武線/錦糸町駅
徒歩21分
半蔵門線/錦糸町駅 徒歩21分 総武線/亀戸駅 徒歩8分 東武亀戸線/亀戸駅 徒歩8分 東武亀戸線/東あずま駅 徒歩21分 東武亀戸線/亀戸水神駅 徒歩9分 都営新宿線/西大島駅 徒歩21分 都営新宿線/大島駅 徒歩19分 |
|---|---|
| 駐車場 | 駐車場なし |
| 環境 |
3駅利用可
/
2沿線利用可
/
駅まで平坦
※部屋・階数により設備が異なる場合がございます。 |
| 建物設備 |
オートロック
/
宅配ボックス
/
管理人有り
/
防犯カメラ
/
エレベーター1基
/
24時間ゴミ出し可
/
敷地内ごみ置き場
/
都市ガス
/
電気
/
公営上水道
/
下水道
/
駐輪場
※部屋・階数により設備が異なる場合がございます。 |
ヴォーガコルテ亀戸駅前周辺の空室物件
江東区周辺が得意な不動産店舗
株式会社エイブル門前仲町店
- オススメ
オススメポイント 墨田江東・江戸川区など、東京ベイエリアは当店にお任せ下さい!
- 交通
- 東西線/門前仲町駅
- 所在地
- 東京都江東区門前仲町1-7-8松原ビル1F
- 開店10年以上
- 仲介手数料家賃の55%以下
- 駅から徒歩3分以内
- 多店舗展開
掲載物件数:
1165
件
- 得意駅
- 門前仲町駅 木場駅 両国駅 森下駅 清澄白河駅 他
- 得意エリア
- 江東区 中央区 墨田区 江戸川区
03-3630-4400
