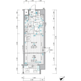
ライオンズプラザ池袋(313)(東京都豊島区東池袋4丁目)の建物情報
ライオンズプラザ池袋(313) 賃貸物件基本情報
このページの情報は広告情報ではありません。過去から現在までCHINTAIネットに掲載のあった物件情報を元に作成した参考ページです。
| 交通 |
山手線/池袋駅
徒歩9分
有楽町線/東池袋駅 徒歩3分 副都心線/雑司が谷駅 徒歩12分 |
|---|---|
| 駐車場 | 駐車場なし |
| 環境 |
--
※部屋・階数により設備が異なる場合がございます。 |
| 建物設備 |
オートロック
/
宅配ボックス
/
防犯カメラ
/
エレベーター
/
敷地内ごみ置き場
/
集合郵便受け
/
電気
/
公営上水道
/
下水道
※部屋・階数により設備が異なる場合がございます。 |
ライオンズプラザ池袋(313)周辺の空室物件
豊島区周辺が得意な不動産店舗
株式会社エイブル目白店
- オススメ
オススメポイント 目白駅での快適なお部屋探しを全力でサポート致します。
- 交通
- 山手線/目白駅
- 所在地
- 東京都豊島区目白3-4-11目白NCKビル1F
- 仲介手数料家賃の55%以下
- 駅から徒歩3分以内
- 多店舗展開
- 年中無休
掲載物件数:
309
件
- 得意駅
- 目白駅 池袋駅 高田馬場駅 雑司が谷駅 椎名町駅 他
- 得意エリア
- 豊島区 新宿区 文京区 板橋区 中野区 他
03-3953-8126
