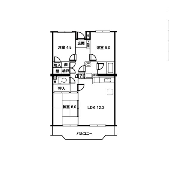
メテオール(埼玉県上尾市緑丘1丁目)の建物情報
メテオール 賃貸物件基本情報
このページの情報は広告情報ではありません。過去から現在までCHINTAIネットに掲載のあった物件情報を元に作成した参考ページです。
| 交通 |
高崎線/上尾駅
徒歩15分
高崎線/北上尾駅 徒歩16分 高崎線/桶川駅 車9分 |
|---|---|
| 駐車場 | 駐車場あり |
| 環境 |
2駅利用可
/
2沿線利用可
/
閑静な住宅地
※部屋・階数により設備が異なる場合がございます。 |
| 建物設備 |
オートロック
/
宅配ボックス
/
セキュリティー会社加入済
/
敷地内ごみ置き場
/
駐輪場
※部屋・階数により設備が異なる場合がございます。 |
メテオール周辺の空室物件
上尾市周辺が得意な不動産店舗
株式会社エイブル上尾店
- オススメ
オススメポイント 埼玉エイブルは埼玉に特化した地域密着企業です!
- 交通
- 高崎線/上尾駅
- 所在地
- 埼玉県上尾市谷津2-1-50-35上尾駅前会館3F
- 年中無休
- 仲介手数料家賃の55%以下
- 駅から徒歩3分以内
- 多店舗展開
掲載物件数:
223
件
- 得意駅
- 上尾駅 北上尾駅 桶川駅 北本駅 鴻巣駅 他
- 得意エリア
- 上尾市 さいたま市北区 鴻巣市 桶川市 北本市 他
048-776-0404
