アーバンドエルⅠ(埼玉県さいたま市北区宮原町1丁目)の建物情報
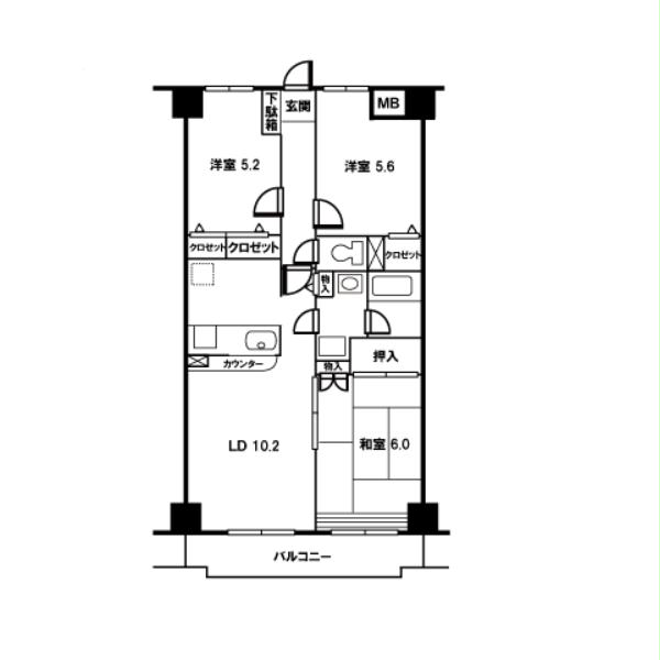
アーバンドエルⅠ 賃貸物件基本情報
このページの情報は広告情報ではありません。過去から現在までCHINTAIネットに掲載のあった物件情報を元に作成した参考ページです。
| 交通 |
埼京線・川越線/大宮駅
徒歩49分
京浜東北線・根岸線/大宮駅 車20分 東北本線<宇都宮線>/土呂駅 徒歩19分 埼京線・川越線/日進駅 徒歩27分 高崎線/宮原駅 徒歩20分 ニューシャトル<伊奈線>/加茂宮駅 徒歩10分 ニューシャトル<伊奈線>/東宮原駅 徒歩9分 ニューシャトル<伊奈線>/今羽駅 徒歩18分 |
|---|---|
| 駐車場 | 駐車場あり |
| 環境 |
2駅利用可
/
2沿線利用可
※部屋・階数により設備が異なる場合がございます。 |
| 建物設備 |
電気
/
公営上水道
/
下水道
/
駐輪場
※部屋・階数により設備が異なる場合がございます。 |
アーバンドエルⅠ周辺の空室物件
さいたま市北区周辺が得意な不動産店舗
株式会社エイブル宮原店
- オススメ
オススメポイント エイブルでは仲介手数料がお家賃の55%です!
- 交通
- 高崎線/宮原駅
- 所在地
- 埼玉県さいたま市北区宮原町3-824-1宮原駅ビル3F
- 駅から徒歩3分以内
- 駅まで車で送迎可
- 仲介手数料家賃の55%以下
- 多店舗展開
掲載物件数:
224
件
- 得意駅
- 宮原駅 上尾駅 日進駅 西大宮駅 加茂宮駅 他
- 得意エリア
- さいたま市北区 さいたま市西区 さいたま市大宮区 さいたま市見沼区 上尾市 他
048-662-4180
