ハイツハセガワ2号館(大阪府大阪市旭区大宮3丁目)の建物情報
掲載中の賃貸物件は2件あります!
ハイツハセガワ2号館 賃貸物件基本情報
| 交通 |
京阪本線・鴨東線/森小路駅
徒歩17分
京阪本線・鴨東線/千林駅 徒歩16分 大阪メトロ谷町線/太子橋今市駅 徒歩15分 大阪メトロ今里筋線/太子橋今市駅 徒歩15分 大阪メトロ谷町線/千林大宮駅 徒歩9分 |
|---|---|
| 駐車場 | 駐車場なし |
| 環境 |
--
※部屋・階数により設備が異なる場合がございます。 |
| 建物設備 |
敷地内ごみ置き場
/
集合郵便受け
/
都市ガス
/
電気
/
公営上水道
/
下水道
/
駐輪場
※部屋・階数により設備が異なる場合がございます。 |
ハイツハセガワ2号館 賃貸物件の空室情報
| 間取図 | 家賃 管理費等 |
敷金/保証金 礼金/償却 |
間取り 専有面積 |
方位物件 階層 |
詳細を見る お問い合わせする |
|---|---|---|---|---|---|
|
|
5.8万円 4,000円 |
--/-- 5.8万/-- |
2DK 40㎡ |
南 3階 |
|
|
|
5.8万円 4,000円 |
--/-- 5.8万/-- |
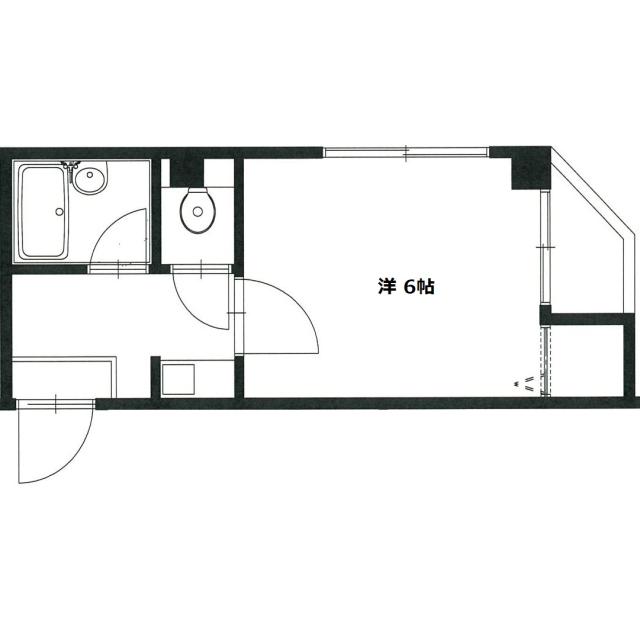
2DK 40㎡ |
南 3階 |
ハイツハセガワ2号館周辺の空室物件
ハイツハセガワ2号館周辺が得意な不動産店舗
株式会社エイブル京阪守口店
- オススメ
オススメポイント 歴史あり!京阪守口店はエイブルの1号店です!
- 交通
- 京阪本線・鴨東線/守口市駅
- 所在地
- 大阪府守口市寺内町2-7-1
- 仲介手数料家賃の55%以下
- 駐車場有
- 女性スタッフ対応
- 駅から徒歩3分以内
掲載物件数:
923
件
- 得意駅
- 守口市駅 守口駅 大日駅 千林大宮駅 太子橋今市駅 他
- 得意エリア
- 守口市 大阪市旭区 門真市 大阪市城東区 大阪市鶴見区 他
06-6996-3851
