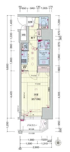
アスヴェル心斎橋東ステーションフロント(大阪府大阪市中央区谷町6丁目)の建物情報
アスヴェル心斎橋東ステーションフロント 賃貸物件基本情報
このページの情報は広告情報ではありません。過去から現在までCHINTAIネットに掲載のあった物件情報を元に作成した参考ページです。
| 交通 |
大阪メトロ御堂筋線/心斎橋駅
徒歩15分
大阪メトロ谷町線/谷町四丁目駅 徒歩14分 大阪メトロ中央線/谷町四丁目駅 徒歩14分 大阪メトロ谷町線/谷町六丁目駅 徒歩8分 大阪メトロ長堀鶴見緑地線/谷町六丁目駅 徒歩8分 大阪メトロ堺筋線/堺筋本町駅 徒歩13分 大阪メトロ中央線/堺筋本町駅 徒歩16分 大阪メトロ堺筋線/長堀橋駅 徒歩14分 大阪メトロ長堀鶴見緑地線/長堀橋駅 徒歩14分 大阪メトロ堺筋線/日本橋駅 徒歩20分 大阪メトロ長堀鶴見緑地線/松屋町駅 徒歩4分 |
|---|---|
| 駐車場 | 駐車場なし |
| 環境 |
--
※部屋・階数により設備が異なる場合がございます。 |
| 建物設備 |
オートロック
/
宅配ボックス
/
防犯カメラ
/
エレベーター
/
都市ガス
/
電気
/
公営上水道
/
下水道
/
駐輪場
※部屋・階数により設備が異なる場合がございます。 |
アスヴェル心斎橋東ステーションフロント周辺の空室物件
大阪市中央区周辺が得意な不動産店舗
株式会社エイブル心斎橋店
- オススメ
オススメポイント 大阪市内賃貸マンションに特化の当店にお任せください。
- 交通
- 大阪メトロ御堂筋線/心斎橋駅
- 所在地
- 大阪府大阪市中央区南船場3-5-21SAKURA SHINSAIBASHI B.L.D 2F
- 引越会社紹介
- 仲介手数料家賃の55%以下
- 駅から徒歩3分以内
- 多店舗展開
掲載物件数:
1290
件
- 得意駅
- 心斎橋駅 本町駅 なんば駅 淀屋橋駅 心斎橋駅 他
- 得意エリア
- 大阪市中央区 大阪市福島区 大阪市西区 大阪市天王寺区 大阪市浪速区 他
06-6251-8126
