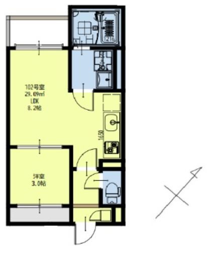
コーポ千寿(宮城県仙台市青葉区葉山町)の建物情報
コーポ千寿 賃貸物件基本情報
このページの情報は広告情報ではありません。過去から現在までCHINTAIネットに掲載のあった物件情報を元に作成した参考ページです。
| 交通 |
仙山線/北仙台駅
徒歩6分
仙台市営地下鉄南北線/北仙台駅 徒歩6分 仙台市営地下鉄南北線/北四番丁駅 徒歩22分 |
|---|---|
| 駐車場 | 駐車場あり |
| 環境 |
--
※部屋・階数により設備が異なる場合がございます。 |
| 建物設備 |
電気
/
公営上水道
/
下水道
※部屋・階数により設備が異なる場合がございます。 |
コーポ千寿周辺の空室物件
仙台市青葉区周辺が得意な不動産店舗
株式会社エイブル県庁市役所前店
- オススメ
オススメポイント エイブルは全物件、仲介手数料が家賃の55%でご紹介可能です!
- 交通
- 仙台市営地下鉄南北線/勾当台公園駅
- 所在地
- 宮城県仙台市青葉区国分町3-8-18USビル1F
- 駅まで車で送迎可
- 駐車場有
- 女性スタッフ対応
- 仲介手数料家賃の55%以下
掲載物件数:
3401
件
- 得意駅
- 勾当台公園駅 北四番丁駅 北仙台駅 広瀬通駅 仙台駅 他
- 得意エリア
- 仙台市若林区 仙台市青葉区 仙台市太白区 塩竈市 多賀城市 他
022-713-8126
