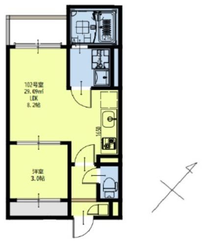
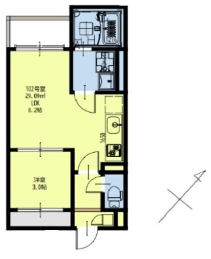
コージーコート北仙台Ⅱ(宮城県仙台市青葉区葉山町)の建物情報
コージーコート北仙台Ⅱ 賃貸物件基本情報
このページの情報は広告情報ではありません。過去から現在までCHINTAIネットに掲載のあった物件情報を元に作成した参考ページです。
| 交通 |
仙山線/北仙台駅
徒歩6分
仙台市営地下鉄南北線/北仙台駅 徒歩6分 仙山線/北山駅 徒歩24分 仙台市営地下鉄南北線/台原駅 徒歩21分 仙台市営地下鉄南北線/北四番丁駅 徒歩22分 |
|---|---|
| 駐車場 | 駐車場あり |
| 環境 |
閑静な住宅地
/
緑豊かな住宅地
/
平坦地
/
駅まで平坦
※部屋・階数により設備が異なる場合がございます。 |
| 建物設備 |
敷地内ごみ置き場
/
電気
/
公営上水道
/
下水道
※部屋・階数により設備が異なる場合がございます。 |
コージーコート北仙台Ⅱ周辺の空室物件
仙台市青葉区周辺が得意な不動産店舗
株式会社エイブル仙台駅前西口店
- オススメ
オススメポイント 仙台駅から一番近いエイブルです!ご来店をお待ちしております
- 交通
- 東北本線/仙台駅
- 所在地
- 宮城県仙台市青葉区中央1-10-10仙台駅前開発ビル2F
- 駅から徒歩3分以内
- 仲介手数料家賃の55%以下
- 多店舗展開
- 年中無休
掲載物件数:
3537
件
- 得意駅
- 仙台駅 五橋駅 愛宕橋駅 河原町駅 榴ケ岡駅 他
- 得意エリア
- 仙台市青葉区 仙台市宮城野区 仙台市若林区 仙台市太白区 仙台市泉区 他
022-212-8222
