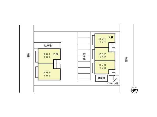
セースコート F棟(三重県鈴鹿市岸岡町)の建物情報
セースコート F棟 賃貸物件基本情報
このページの情報は広告情報ではありません。過去から現在までCHINTAIネットに掲載のあった物件情報を元に作成した参考ページです。
| 交通 |
近鉄名古屋線/鼓ケ浦駅
徒歩38分
近鉄名古屋線/白子駅 徒歩24分 近鉄名古屋線/千代崎駅 徒歩29分 伊勢鉄道/玉垣駅 徒歩42分 |
|---|---|
| 駐車場 | 駐車場あり |
| 環境 |
4駅以上利用可
/
2沿線利用可
/
閑静な住宅地
※部屋・階数により設備が異なる場合がございます。 |
| 建物設備 |
LPガス
/
電気
/
公営上水道
/
浄水槽
/
駐車場2台無料
/
駐輪場
※部屋・階数により設備が異なる場合がございます。 |
セースコート F棟周辺の空室物件
鈴鹿市周辺が得意な不動産店舗
- 交通
- 近鉄鈴鹿線/平田町駅
- 所在地
- 三重県鈴鹿市算所3丁目8番14号 primavera102
掲載物件数:
609
件
059-375-5995
