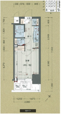
プレサンス神戸プレシャス(901)(兵庫県神戸市兵庫区中道通2丁目)の建物情報
プレサンス神戸プレシャス(901) 賃貸物件基本情報
このページの情報は広告情報ではありません。過去から現在までCHINTAIネットに掲載のあった物件情報を元に作成した参考ページです。
| 交通 |
東海道本線・山陽本線<JR神戸線>/神戸駅
徒歩17分
神戸高速鉄道東西線/新開地駅 徒歩4分 神戸市営地下鉄北神・西神・山手線/湊川公園駅 徒歩5分 |
|---|---|
| 駐車場 | 駐車場なし |
| 環境 |
--
※部屋・階数により設備が異なる場合がございます。 |
| 建物設備 |
オートロック
/
防犯カメラ
/
都市ガス
/
電気
/
公営上水道
/
下水道
※部屋・階数により設備が異なる場合がございます。 |
プレサンス神戸プレシャス(901)周辺の空室物件
神戸市兵庫区周辺が得意な不動産店舗
株式会社エイブルJR兵庫店
- オススメ
オススメポイント 三宮大阪へアクセス良好!ご満足いただけるお部屋探しは当店へ♪
- 交通
- 東海道本線・山陽本線<JR神戸線>/兵庫駅
- 所在地
- 兵庫県神戸市兵庫区羽坂通4-2-10モンサンミッシェルハサカ1F
- 仲介手数料家賃の55%以下
- 駅から徒歩3分以内
- 年中無休
- 多店舗展開
掲載物件数:
930
件
- 得意駅
- 兵庫駅 神戸駅 高速神戸駅 新開地駅 大開駅 他
- 得意エリア
- 神戸市兵庫区 神戸市灘区 神戸市長田区 神戸市須磨区 神戸市北区 他
078-384-6080
