ロゼックII南大高(愛知県名古屋市緑区高根山1丁目)の建物情報
掲載中の賃貸物件は1件あります!
ロゼックII南大高 賃貸物件基本情報
| 交通 |
東海道本線/共和駅
徒歩23分
東海道本線/大高駅 徒歩42分 名鉄名古屋本線/左京山駅 徒歩51分 名鉄常滑線・空港線/名和駅 徒歩57分 東海道本線/南大高駅 徒歩20分 |
|---|---|
| 駐車場 | 駐車場あり |
| 環境 |
2駅利用可
※部屋・階数により設備が異なる場合がございます。 |
| 建物設備 |
敷地内ごみ置き場
/
LPガス
/
電気
/
公営上水道
/
下水道
/
駐輪場
/
平面駐車場
※部屋・階数により設備が異なる場合がございます。 |
ロゼックII南大高 賃貸物件の空室情報
| 間取図 | 家賃 管理費等 |
敷金/保証金 礼金/償却 |
間取り 専有面積 |
方位物件 階層 |
詳細を見る お問い合わせする |
|---|---|---|---|---|---|
|
|
6.9万円 3,500円 |
1ヶ月/-- なし/-- |
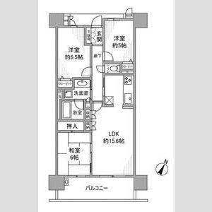
1LDK 49.68㎡ |
南 3階 |
ロゼックII南大高周辺の空室物件
ロゼックII南大高周辺が得意な不動産店舗
- 交通
- 名鉄常滑線・空港線/太田川駅
- 所在地
- 愛知県東海市中央町7丁目13番地 メゾン・ド・フェリーク1F
掲載物件数:
2750
件
0562-36-0826
