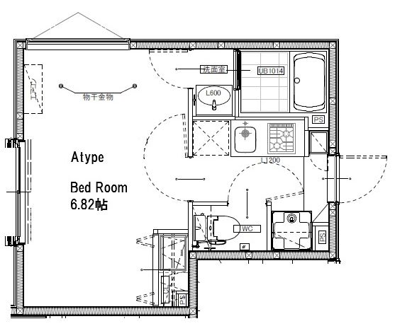
コーポ池田上井草(東京都杉並区上井草3丁目)の建物情報
コーポ池田上井草 賃貸物件基本情報
このページの情報は広告情報ではありません。過去から現在までCHINTAIネットに掲載のあった物件情報を元に作成した参考ページです。
| 交通 |
中央線/荻窪駅
バス17分:停歩6分
総武線/西荻窪駅 徒歩27分 西武池袋線/石神井公園駅 バス21分:停歩5分 西武新宿線/井荻駅 徒歩20分 西武新宿線/上井草駅 徒歩9分 西武新宿線/上石神井駅 徒歩19分 |
|---|---|
| 駐車場 | 駐車場なし |
| 環境 |
--
※部屋・階数により設備が異なる場合がございます。 |
| 建物設備 |
都市ガス
※部屋・階数により設備が異なる場合がございます。 |
コーポ池田上井草周辺の空室物件
杉並区周辺が得意な不動産店舗
株式会社エイブル阿佐ヶ谷店
- オススメ
オススメポイント 【お客様へ安心安全なお部屋探し環境の提供を第一に営業中です】
- 交通
- 中央線/阿佐ケ谷駅
- 所在地
- 東京都杉並区阿佐谷南1-48-10高橋ビル4F
- 仲介手数料家賃の55%以下
- 駅から徒歩3分以内
- 多店舗展開
- 年中無休
掲載物件数:
169
件
- 得意駅
- 阿佐ケ谷駅 南阿佐ケ谷駅 方南町駅 上井草駅 井荻駅 他
- 得意エリア
- 杉並区 中野区 新宿区 武蔵野市 三鷹市 他
03-5306-8126
