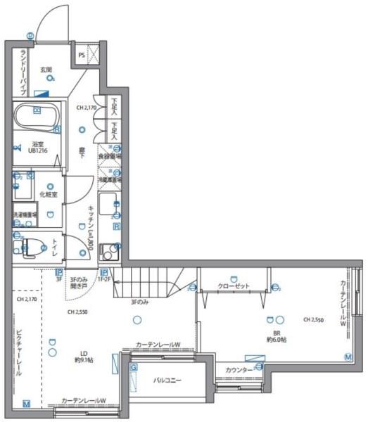
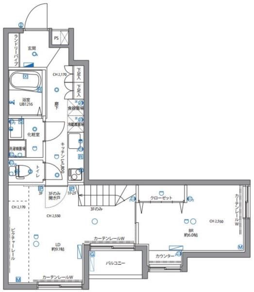
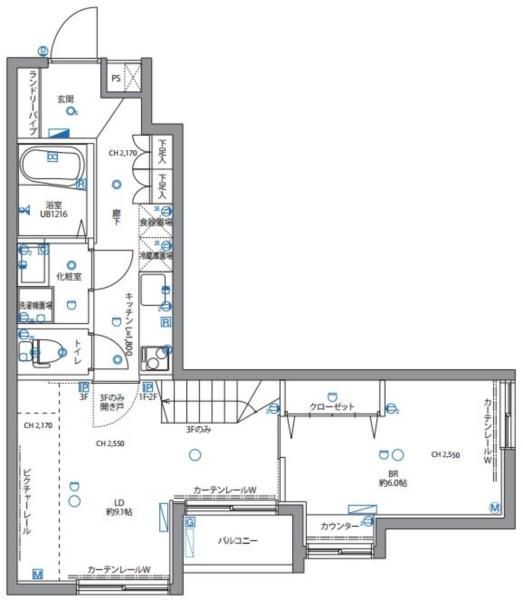
プラムアーク白金台(東京都品川区上大崎1丁目)の建物情報
プラムアーク白金台 賃貸物件基本情報
このページの情報は広告情報ではありません。過去から現在までCHINTAIネットに掲載のあった物件情報を元に作成した参考ページです。
| 交通 |
山手線/五反田駅
徒歩13分
都営三田線/目黒駅 徒歩16分 南北線/白金台駅 徒歩6分 都営浅草線/高輪台駅 徒歩9分 |
|---|---|
| 駐車場 | 駐車場なし |
| 環境 |
3駅利用可
/
3沿線駅利用可
※部屋・階数により設備が異なる場合がございます。 |
| 建物設備 |
宅配ボックス
/
都市ガス
/
駐輪場
/
バイク置場
※部屋・階数により設備が異なる場合がございます。 |
プラムアーク白金台周辺の空室物件
品川区周辺が得意な不動産店舗
株式会社エイブル五反田店
- オススメ
オススメポイント 五反田・大崎エリアのお部屋探しなら、エイブル五反田店へ!!
- 交通
- 山手線/五反田駅
- 所在地
- 東京都品川区東五反田5-28-11クレール五反田1F
- 年中無休
- 開店10年以上
- 英語対応可
- 仲介手数料家賃の55%以下
掲載物件数:
618
件
- 得意駅
- 五反田駅 大崎駅 品川駅 戸越駅 中延駅 他
- 得意エリア
- 品川区 大田区 港区 目黒区
03-3442-2120
