パークタワー晴海(1122)(東京都中央区晴海2丁目)の建物情報
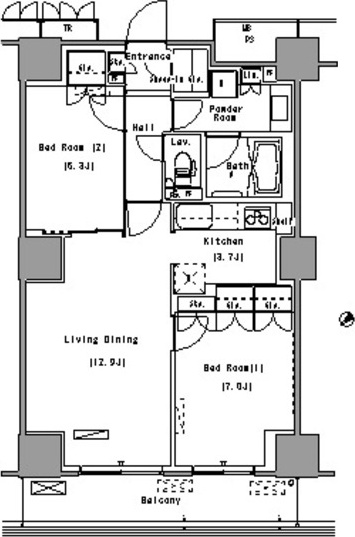
パークタワー晴海(1122) 賃貸物件基本情報
このページの情報は広告情報ではありません。過去から現在までCHINTAIネットに掲載のあった物件情報を元に作成した参考ページです。
| 交通 |
有楽町線/月島駅
徒歩12分
有楽町線/豊洲駅 徒歩13分 都営大江戸線/勝どき駅 徒歩16分 |
|---|---|
| 駐車場 | 駐車場なし |
| 環境 |
--
※部屋・階数により設備が異なる場合がございます。 |
| 建物設備 |
オートロック
/
宅配ボックス
/
防犯カメラ
/
エレベーター
/
敷地内ごみ置き場
/
集合郵便受け
/
都市ガス
/
電気
/
公営上水道
/
下水道
/
駐輪場
※部屋・階数により設備が異なる場合がございます。 |
パークタワー晴海(1122)周辺の空室物件
中央区周辺が得意な不動産店舗
株式会社エイブル人形町店
- オススメ
オススメポイント 東京都中央区を中心としたお部屋探しは当店へお任せください!
- 交通
- 日比谷線/人形町駅
- 所在地
- 東京都中央区日本橋人形町2-6-1柴川ビル3F
- 入居ローン対応可
- 駅から徒歩3分以内
- 多店舗展開
- 保証人不要相談可
掲載物件数:
1586
件
- 得意駅
- 水天宮前駅 三越前駅 清澄白河駅 人形町駅 茅場町駅 他
- 得意エリア
- 中央区 千代田区 港区 台東区 墨田区 他
03-3664-8126
