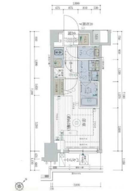
小山7丁目戸建(東京都品川区小山7丁目)の建物情報
小山7丁目戸建 賃貸物件基本情報
このページの情報は広告情報ではありません。過去から現在までCHINTAIネットに掲載のあった物件情報を元に作成した参考ページです。
| 交通 |
東急目黒線/西小山駅
徒歩6分
東急目黒線/洗足駅 徒歩3分 東急大井町線/北千束駅 徒歩9分 |
|---|---|
| 駐車場 | 駐車場なし |
| 環境 |
3駅利用可
/
2沿線利用可
/
閑静な住宅地
/
公園まで歩いて5分(400m)以内
※部屋・階数により設備が異なる場合がございます。 |
| 建物設備 |
都市ガス
/
電気
/
下水道
/
駐輪場
/
バイク置場
※部屋・階数により設備が異なる場合がございます。 |
小山7丁目戸建周辺の空室物件
品川区周辺が得意な不動産店舗
株式会社エイブル青物横丁品川シーサイド店
- オススメ
オススメポイント 主要ターミナルへ快速アクセス!都心と下町が融合する青物横丁
- 交通
- 京急本線・久里浜線/青物横丁駅
- 所在地
- 東京都品川区南品川3-6-1J・NACビル4F
- 仲介手数料家賃の55%以下
- 駅から徒歩3分以内
- 多店舗展開
- 開店10年以上
掲載物件数:
428
件
- 得意駅
- 青物横丁駅 品川シーサイド駅 大井町駅 大森駅 品川駅 他
- 得意エリア
- 品川区 港区 大田区
03-5781-0977
