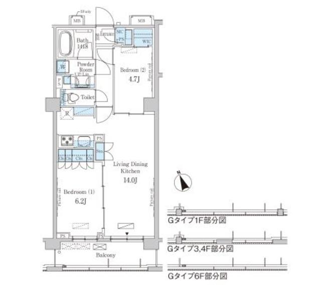
アーベインテラス駒込Ⅱ(東京都北区中里3丁目)の建物情報
アーベインテラス駒込Ⅱ 賃貸物件基本情報
このページの情報は広告情報ではありません。過去から現在までCHINTAIネットに掲載のあった物件情報を元に作成した参考ページです。
| 交通 |
山手線/駒込駅
徒歩10分
南北線/駒込駅 徒歩8分 山手線/田端駅 徒歩17分 京浜東北線・根岸線/上中里駅 徒歩12分 高崎線/尾久駅 徒歩21分 東北本線<宇都宮線>/尾久駅 徒歩21分 南北線/西ケ原駅 徒歩15分 |
|---|---|
| 駐車場 | 駐車場なし |
| 環境 |
--
※部屋・階数により設備が異なる場合がございます。 |
| 建物設備 |
オートロック
/
宅配ボックス
/
防犯カメラ
/
敷地内ごみ置き場
/
集合郵便受け
/
都市ガス
/
電気
/
公営上水道
/
下水道
/
駐輪場
※部屋・階数により設備が異なる場合がございます。 |
アーベインテラス駒込Ⅱ周辺の空室物件
北区周辺が得意な不動産店舗
株式会社エイブル王子店
- オススメ
オススメポイント 地域最大級の取り扱い数を誇る老舗。
- 交通
- 京浜東北線・根岸線/王子駅
- 所在地
- 東京都北区王子1-16-7石井ビル2F
- 駅から徒歩3分以内
- 仲介手数料家賃の55%以下
- 多店舗展開
- 開店10年以上
掲載物件数:
154
件
- 得意駅
- 王子駅 東十条駅 上中里駅 王子駅 西ケ原駅 他
- 得意エリア
- 北区 豊島区 板橋区 足立区 さいたま市南区 他
03-3912-8201
