グランシャリオ本蓮沼(東京都板橋区蓮沼町)の建物情報
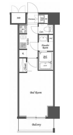
グランシャリオ本蓮沼 賃貸物件基本情報
このページの情報は広告情報ではありません。過去から現在までCHINTAIネットに掲載のあった物件情報を元に作成した参考ページです。
| 交通 |
都営三田線/志村坂上駅
徒歩9分
都営三田線/本蓮沼駅 徒歩5分 |
|---|---|
| 駐車場 | 駐車場なし |
| 環境 |
2駅利用可
※部屋・階数により設備が異なる場合がございます。 |
| 建物設備 |
オートロック
/
管理人有り
/
エレベーター
/
24時間ゴミ出し可
/
敷地内ごみ置き場
/
集合郵便受け
/
都市ガス
/
電気
/
公営上水道
/
下水道
/
駐輪場
※部屋・階数により設備が異なる場合がございます。 |
グランシャリオ本蓮沼周辺の空室物件
板橋区周辺が得意な不動産店舗
株式会社エイブル志村坂上店
- オススメ
オススメポイント 都営三田線のお部屋探しはエイブル志村坂上店にお任せください♪
- 交通
- 都営三田線/志村坂上駅
- 所在地
- 東京都板橋区志村2-2-321オギサカ志村坂上2F
- 年中無休
- 女性スタッフ対応
- 仲介手数料家賃の55%以下
- 駅から徒歩3分以内
掲載物件数:
138
件
- 得意駅
- 志村坂上駅 志村三丁目駅 蓮根駅 西台駅 高島平駅 他
- 得意エリア
- 板橋区 北区 豊島区
03-3966-5650
