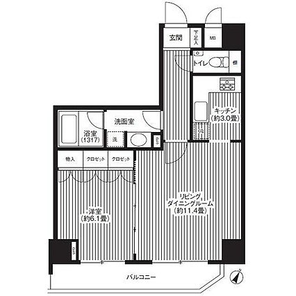
秀和参宮橋レジデンス(東京都渋谷区代々木4丁目)の建物情報
秀和参宮橋レジデンス 賃貸物件基本情報
このページの情報は広告情報ではありません。過去から現在までCHINTAIネットに掲載のあった物件情報を元に作成した参考ページです。
| 交通 |
山手線/代々木駅
徒歩11分
京王線・京王新線/初台駅 徒歩8分 小田急小田原線/参宮橋駅 徒歩4分 |
|---|---|
| 駐車場 | 駐車場あり |
| 環境 |
2駅利用可
/
2沿線利用可
※部屋・階数により設備が異なる場合がございます。 |
| 建物設備 |
オートロック
/
防犯カメラ
/
エレベーター
/
24時間ゴミ出し可
/
都市ガス
/
電気
/
公営上水道
/
下水道
※部屋・階数により設備が異なる場合がございます。 |
秀和参宮橋レジデンス周辺の空室物件
渋谷区周辺が得意な不動産店舗
株式会社エイブル渋谷店
- オススメ
オススメポイント 叶えます!希望物件♪渋谷に来れば何とかなる!英語接客可能!
- 交通
- 山手線/渋谷駅
- 所在地
- 東京都渋谷区渋谷1-24-15ヒューリック渋谷宮益坂ビル4F
- 女性スタッフ対応
- 仲介手数料家賃の55%以下
- 駅から徒歩3分以内
- 多店舗展開
掲載物件数:
730
件
- 得意駅
- 渋谷駅 三軒茶屋駅 代々木公園駅 原宿駅 下北沢駅 他
- 得意エリア
- 渋谷区 港区 新宿区 目黒区 世田谷区 他
03-3499-8911
