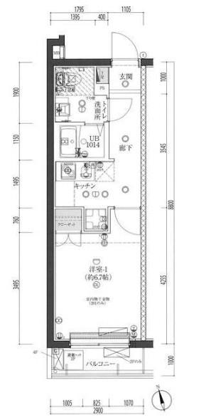
ジェネラルアパートメント常盤台(204)(東京都板橋区常盤台3丁目)の建物情報
ジェネラルアパートメント常盤台(204) 賃貸物件基本情報
このページの情報は広告情報ではありません。過去から現在までCHINTAIネットに掲載のあった物件情報を元に作成した参考ページです。
| 交通 |
東武東上線/中板橋駅
徒歩19分
東武東上線/ときわ台駅 徒歩9分 東武東上線/上板橋駅 徒歩10分 |
|---|---|
| 駐車場 | 駐車場なし |
| 環境 |
--
※部屋・階数により設備が異なる場合がございます。 |
| 建物設備 |
オートロック
/
防犯カメラ
/
エレベーター
/
敷地内ごみ置き場
/
集合郵便受け
/
都市ガス
/
電気
/
公営上水道
/
下水道
※部屋・階数により設備が異なる場合がございます。 |
ジェネラルアパートメント常盤台(204)周辺の空室物件
板橋区周辺が得意な不動産店舗
株式会社エイブルときわ台店
- オススメ
オススメポイント あなたのライフスタイルをトータルにサポート致します。
- 交通
- 東武東上線/ときわ台駅
- 所在地
- 東京都板橋区常盤台1-2-3新光常盤台ビル2F
- 仲介手数料家賃の55%以下
- 駅から徒歩3分以内
- 多店舗展開
- 年中無休
掲載物件数:
224
件
- 得意駅
- ときわ台駅 中板橋駅 上板橋駅 池袋駅 千川駅 他
- 得意エリア
- 板橋区 新宿区 豊島区 北区 練馬区 他
03-3965-6811
