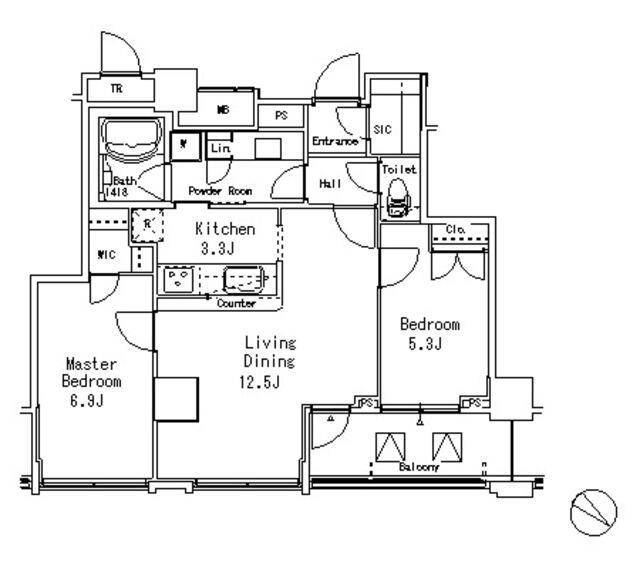
DearCourtMeguro(ディアコートメグロ)(東京都目黒区目黒1丁目)の建物情報
DearCourtMeguro(ディアコートメグロ) 賃貸物件基本情報
このページの情報は広告情報ではありません。過去から現在までCHINTAIネットに掲載のあった物件情報を元に作成した参考ページです。
| 交通 |
山手線/目黒駅
徒歩7分
山手線/恵比寿駅 徒歩14分 東急目黒線/不動前駅 徒歩15分 |
|---|---|
| 駐車場 | 駐車場なし |
| 環境 |
--
※部屋・階数により設備が異なる場合がございます。 |
| 建物設備 |
オートロック
/
都市ガス
/
電気
/
公営上水道
/
下水道
※部屋・階数により設備が異なる場合がございます。 |
DearCourtMeguro(ディアコートメグロ)周辺の空室物件
目黒区周辺が得意な不動産店舗
株式会社エイブル目黒店
- オススメ
オススメポイント 目黒駅周辺のご紹介物件数はトップレベル!!仲介手数料半額!!
- 交通
- 山手線/目黒駅
- 所在地
- 東京都目黒区目黒1-4-16目黒Gビル1F
- 英語対応可
- 仲介手数料家賃の55%以下
- 駅から徒歩3分以内
- 多店舗展開
掲載物件数:
677
件
- 得意駅
- 目黒駅 五反田駅 恵比寿駅 大崎駅 品川駅 他
- 得意エリア
- 港区 品川区 目黒区 大田区 世田谷区 他
03-3494-8126
