越田ビル(東京都江東区亀戸7丁目)の建物情報
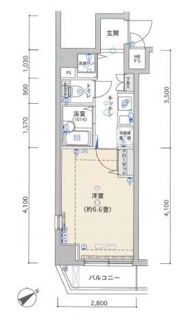
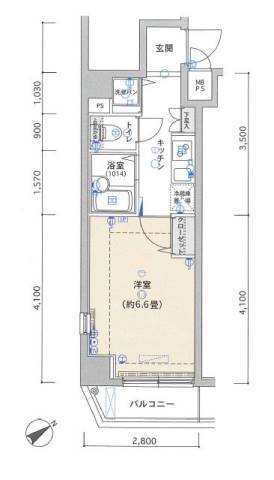
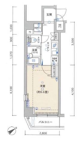
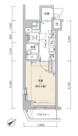
越田ビル 賃貸物件基本情報
このページの情報は広告情報ではありません。過去から現在までCHINTAIネットに掲載のあった物件情報を元に作成した参考ページです。
| 交通 |
総武線/亀戸駅
徒歩17分
東武亀戸線/亀戸駅 徒歩17分 総武線/平井駅 徒歩25分 東武亀戸線/東あずま駅 徒歩15分 東武亀戸線/亀戸水神駅 徒歩13分 都営新宿線/西大島駅 徒歩22分 都営新宿線/大島駅 徒歩12分 都営新宿線/東大島駅 徒歩20分 |
|---|---|
| 駐車場 | 駐車場なし |
| 環境 |
3駅利用可
/
3沿線駅利用可
/
平坦地
/
駅まで平坦
※部屋・階数により設備が異なる場合がございます。 |
| 建物設備 |
宅配ボックス
/
防犯カメラ
/
エレベーター1基
/
敷地内ごみ置き場
/
都市ガス
/
駐輪場
※部屋・階数により設備が異なる場合がございます。 |
越田ビル周辺の空室物件
江東区周辺が得意な不動産店舗
株式会社エイブル門前仲町店
- オススメ
オススメポイント 墨田江東・江戸川区など、東京ベイエリアは当店にお任せ下さい!
- 交通
- 東西線/門前仲町駅
- 所在地
- 東京都江東区門前仲町1-7-8松原ビル1F
- 開店10年以上
- 仲介手数料家賃の55%以下
- 駅から徒歩3分以内
- 多店舗展開
掲載物件数:
1158
件
- 得意駅
- 門前仲町駅 木場駅 両国駅 森下駅 清澄白河駅 他
- 得意エリア
- 江東区 中央区 墨田区 江戸川区
03-3630-4400
