野室マンション(東京都葛飾区金町6丁目)の建物情報
掲載中の賃貸物件は1件あります!
野室マンション 賃貸物件基本情報
| 交通 |
常磐線/亀有駅
バス27分:停歩9分
常磐線/金町駅 徒歩5分 京成本線/京成高砂駅 徒歩30分 北総鉄道北総線/京成高砂駅 徒歩30分 成田スカイアクセス/京成高砂駅 徒歩30分 京成金町線/柴又駅 徒歩19分 京成金町線/京成金町駅 徒歩5分 北総鉄道北総線/新柴又駅 徒歩26分 |
|---|---|
| 駐車場 | 駐車場なし |
| 環境 |
2駅利用可
/
3沿線駅利用可
※部屋・階数により設備が異なる場合がございます。 |
| 建物設備 |
電気
/
公営上水道
/
下水道
/
自走式駐車場
※部屋・階数により設備が異なる場合がございます。 |
野室マンション 賃貸物件の空室情報
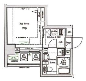
| 間取図 | 家賃 管理費等 |
敷金/保証金 礼金/償却 |
間取り 専有面積 |
方位物件 階層 |
詳細を見る お問い合わせする |
|---|---|---|---|---|---|
|
|
5.6万円 3,000円 |
なし/-- なし/-- |
1R 24.05㎡ |
北西 2階 |
