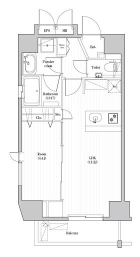
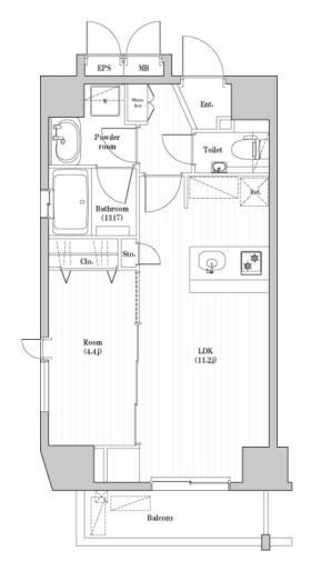
Camera Felice(東京都練馬区東大泉3丁目)の建物情報
Camera Felice 賃貸物件基本情報
このページの情報は広告情報ではありません。過去から現在までCHINTAIネットに掲載のあった物件情報を元に作成した参考ページです。
| 交通 |
中央線/吉祥寺駅
バス32分:停歩4分
西武池袋線/石神井公園駅 徒歩28分 西武池袋線/大泉学園駅 徒歩4分 |
|---|---|
| 駐車場 | 駐車場なし |
| 環境 |
--
※部屋・階数により設備が異なる場合がございます。 |
| 建物設備 |
都市ガス
/
灯油ボイラー
/
電気
/
公営上水道
※部屋・階数により設備が異なる場合がございます。 |
Camera Felice周辺の空室物件
練馬区周辺が得意な不動産店舗
株式会社エイブル東武練馬店
- オススメ
オススメポイント 女性スタッフが多いお店です。
- 交通
- 東武東上線/東武練馬駅
- 所在地
- 東京都練馬区北町2-38-5大明ビル1F
- 駅から徒歩3分以内
- 仲介手数料家賃の55%以下
- 多店舗展開
- 開店10年以上
掲載物件数:
143
件
- 得意駅
- 東武練馬駅 下赤塚駅 上板橋駅 西台駅 高島平駅 他
- 得意エリア
- 練馬区 板橋区 豊島区 西東京市
03-5945-3777
