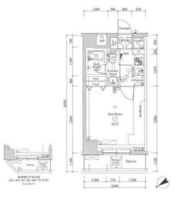
リバティーハウス(東京都荒川区西尾久5丁目)の建物情報
リバティーハウス 賃貸物件基本情報
このページの情報は広告情報ではありません。過去から現在までCHINTAIネットに掲載のあった物件情報を元に作成した参考ページです。
| 交通 |
山手線/田端駅
徒歩20分
京浜東北線・根岸線/上中里駅 徒歩20分 高崎線/尾久駅 徒歩7分 南北線/西ケ原駅 徒歩27分 都営日暮里・舎人ライナー/熊野前駅 徒歩16分 都電荒川線/小台駅 徒歩8分 都電荒川線/荒川遊園地前駅 徒歩5分 都電荒川線/荒川車庫前駅 徒歩4分 |
|---|---|
| 駐車場 | 駐車場あり |
| 環境 |
2駅利用可
/
3沿線駅利用可
/
閑静な住宅地
※部屋・階数により設備が異なる場合がございます。 |
| 建物設備 |
都市ガス
/
電気
/
公営上水道
/
下水道
/
駐輪場
※部屋・階数により設備が異なる場合がございます。 |
リバティーハウス周辺の空室物件
荒川区周辺が得意な不動産店舗
株式会社エイブル町屋店
- オススメ
オススメポイント 荒川区,足立区のお部屋探しはお任せ下さい。初期費用分割払可。
- 交通
- 千代田線/町屋駅
- 所在地
- 東京都荒川区町屋2-2-23第1小田ビル3F
- 仲介手数料家賃の55%以下
- 駅から徒歩3分以内
- 多店舗展開
- 開店10年以上
掲載物件数:
348
件
- 得意駅
- 町屋駅 熊野前駅 三ノ輪駅 南千住駅 西日暮里駅 他
- 得意エリア
- 荒川区 北区 足立区 台東区 墨田区 他
03-5692-5955
