スカイコート品川パークサイド(東京都品川区南大井2丁目)の建物情報
掲載中の賃貸物件は1件あります!
スカイコート品川パークサイド 賃貸物件基本情報
| 交通 |
京浜東北線・根岸線/大井町駅
徒歩21分
東急大井町線/大井町駅 徒歩20分 京浜東北線・根岸線/大森駅 徒歩19分 横須賀線/西大井駅 徒歩28分 京急本線・久里浜線/鮫洲駅 徒歩25分 京急本線・久里浜線/立会川駅 徒歩13分 京急本線・久里浜線/大森海岸駅 徒歩9分 京急本線・久里浜線/平和島駅 徒歩26分 東京モノレール羽田空港線/大井競馬場前駅 徒歩18分 |
|---|---|
| 駐車場 | 駐車場なし |
| 環境 |
4駅以上利用可
/
3沿線駅利用可
/
閑静な住宅地
/
緑豊かな住宅地
※部屋・階数により設備が異なる場合がございます。 |
| 建物設備 |
オートロック
/
宅配ボックス
/
防犯カメラ
/
エレベーター1基
/
24時間ゴミ出し可
/
敷地内ごみ置き場
/
集合郵便受け
/
都市ガス
/
電気
/
公営上水道
/
下水道
/
駐輪場
※部屋・階数により設備が異なる場合がございます。 |
スカイコート品川パークサイド 賃貸物件の空室情報
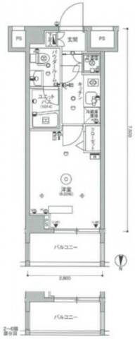
| 間取図 | 家賃 管理費等 |
敷金/保証金 礼金/償却 |
間取り 専有面積 |
方位物件 階層 |
詳細を見る お問い合わせする |
|---|---|---|---|---|---|
|
|
8.93万円 7,000円 |
1ヶ月/-- 1ヶ月/-- |
1K 21.28㎡ |
南 2階 |
