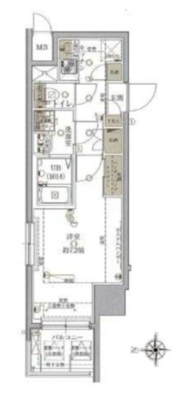
デザインメゾン東浅草(東京都台東区清川1丁目)の建物情報
デザインメゾン東浅草 賃貸物件基本情報
このページの情報は広告情報ではありません。過去から現在までCHINTAIネットに掲載のあった物件情報を元に作成した参考ページです。
| 交通 |
常磐線/南千住駅
徒歩18分
つくばエクスプレス/南千住駅 徒歩18分 日比谷線/南千住駅 徒歩18分 東武伊勢崎線・スカイツリーライン/浅草駅 徒歩23分 銀座線/浅草駅 徒歩23分 都営浅草線/浅草駅 徒歩23分 日比谷線/三ノ輪駅 徒歩18分 日比谷線/入谷駅 徒歩25分 都電荒川線/三ノ輪橋駅 徒歩21分 つくばエクスプレス/浅草駅 徒歩21分 |
|---|---|
| 駐車場 | 駐車場なし |
| 環境 |
2駅利用可
/
2沿線利用可
※部屋・階数により設備が異なる場合がございます。 |
| 建物設備 |
都市ガス
/
電気
/
公営上水道
/
下水道
※部屋・階数により設備が異なる場合がございます。 |
デザインメゾン東浅草周辺の空室物件
台東区周辺が得意な不動産店舗
株式会社エイブル浅草橋店
- オススメ
オススメポイント 都心と下町が融合した街、浅草橋
- 交通
- 総武線/浅草橋駅
- 所在地
- 東京都台東区浅草橋1-9-13第111東京ビル3F
- 仲介手数料家賃の55%以下
- 駅から徒歩3分以内
- 多店舗展開
- 年中無休
掲載物件数:
1054
件
- 得意駅
- 浅草橋駅 浅草橋駅 押上駅 蔵前駅 浅草駅 他
- 得意エリア
- 台東区 千代田区 中央区 墨田区 江東区 他
03-5833-8871
