第3コーポ藤の木(埼玉県狭山市大字東三ツ木)の建物情報
掲載中の賃貸物件は1件あります!
第3コーポ藤の木 賃貸物件基本情報
| 交通 |
西武新宿線/狭山市駅
徒歩31分
西武新宿線/新狭山駅 徒歩9分 西武新宿線/南大塚駅 徒歩42分 |
|---|---|
| 駐車場 | 駐車場あり |
| 環境 |
閑静な住宅地
※部屋・階数により設備が異なる場合がございます。 |
| 建物設備 |
LPガス
/
公営上水道
/
駐車場1台無料
※部屋・階数により設備が異なる場合がございます。 |
第3コーポ藤の木 賃貸物件の空室情報
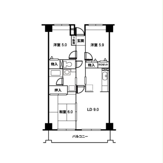
| 間取図 | 家賃 管理費等 |
敷金/保証金 礼金/償却 |
間取り 専有面積 |
方位物件 階層 |
詳細を見る お問い合わせする |
|---|---|---|---|---|---|
|
|
4.2万円 1,000円 |
2ヶ月/-- --/-- |
2DK 36.36㎡ |
-- 2階 |
第3コーポ藤の木周辺の空室物件
第3コーポ藤の木周辺が得意な不動産店舗
株式会社タウンハウジング埼玉本川越店
- オススメ
オススメポイント 元気に頑張ります!
- 交通
- 西武新宿線/本川越駅 東武東上線/川越市駅 埼京線・川越線/川越駅
- 所在地
- 埼玉県川越市新富町2-33-1吉田謙受堂ビル2階
- ChintaiNet掲載店舗
- Woman掲載店舗
掲載物件数:
2979
件
- 得意駅
- 得意エリア
049-222-1020
