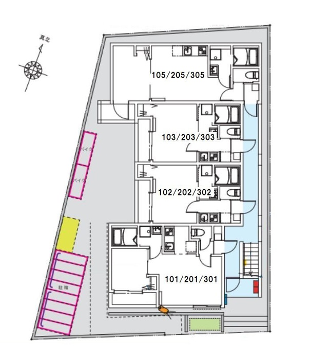
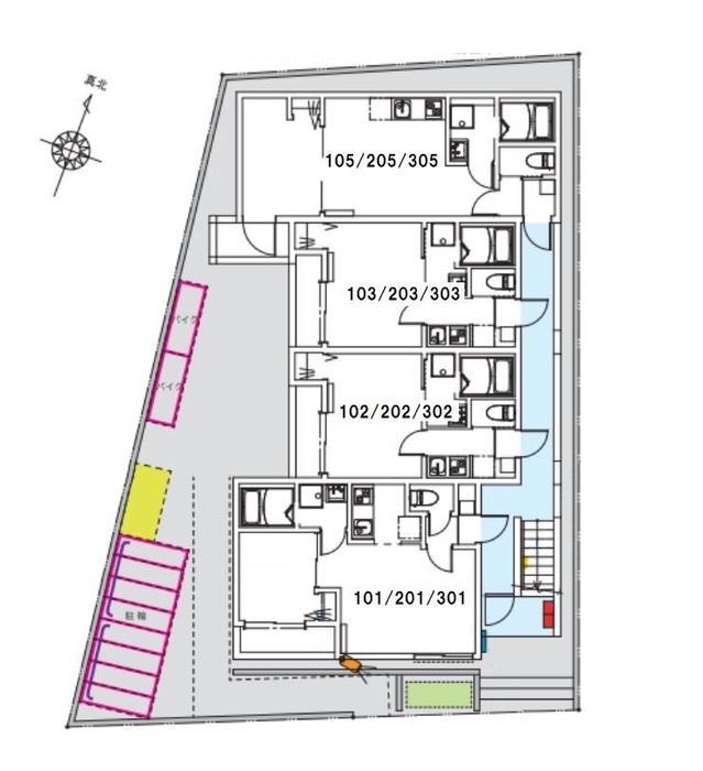
大宮植竹住宅(308)(埼玉県さいたま市北区植竹町1丁目)の建物情報
大宮植竹住宅(308) 賃貸物件基本情報
このページの情報は広告情報ではありません。過去から現在までCHINTAIネットに掲載のあった物件情報を元に作成した参考ページです。
| 交通 |
東北本線<宇都宮線>/土呂駅
徒歩11分
東武野田線<アーバンパークライン>/大宮公園駅 徒歩9分 東武野田線<アーバンパークライン>/北大宮駅 徒歩12分 |
|---|---|
| 駐車場 | 駐車場なし |
| 環境 |
--
※部屋・階数により設備が異なる場合がございます。 |
| 建物設備 |
都市ガス
/
灯油ボイラー
/
電気
/
公営上水道
/
下水道
※部屋・階数により設備が異なる場合がございます。 |
大宮植竹住宅(308)周辺の空室物件
さいたま市北区周辺が得意な不動産店舗
株式会社エイブル宮原店
- オススメ
オススメポイント エイブルでは仲介手数料がお家賃の55%です!
- 交通
- 高崎線/宮原駅
- 所在地
- 埼玉県さいたま市北区宮原町3-824-1宮原駅ビル3F
- 駅から徒歩3分以内
- 駅まで車で送迎可
- 仲介手数料家賃の55%以下
- 多店舗展開
掲載物件数:
231
件
- 得意駅
- 宮原駅 上尾駅 日進駅 西大宮駅 加茂宮駅 他
- 得意エリア
- さいたま市北区 さいたま市西区 さいたま市大宮区 さいたま市見沼区 上尾市 他
048-662-4180
