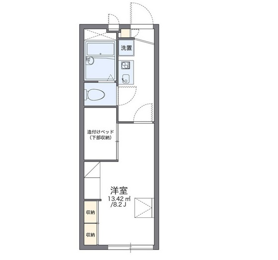
ファミーレ瀬戸(岡山県岡山市東区瀬戸町瀬戸)の建物情報
ファミーレ瀬戸 賃貸物件基本情報
このページの情報は広告情報ではありません。過去から現在までCHINTAIネットに掲載のあった物件情報を元に作成した参考ページです。
| 交通 |
山陽本線(中国)/瀬戸駅
徒歩8分
山陽本線(中国)/上道駅 徒歩57分 赤穂線(岡山県内)/長船駅 徒歩89分 津山線/玉柏駅 徒歩89分 |
|---|---|
| 駐車場 | 駐車場あり |
| 環境 |
4駅以上利用可
/
3沿線駅利用可
/
緑豊かな住宅地
/
平坦地
/
駅まで平坦
※部屋・階数により設備が異なる場合がございます。 |
| 建物設備 |
LPガス
/
公営上水道
/
下水道
/
駐輪場
/
平面駐車場
※部屋・階数により設備が異なる場合がございます。 |
