ノーブルハイツ B棟(岡山県岡山市東区瀬戸町光明谷)の建物情報
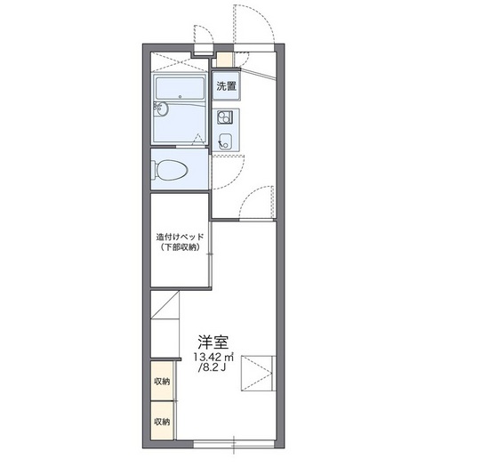
ノーブルハイツ B棟 賃貸物件基本情報
このページの情報は広告情報ではありません。過去から現在までCHINTAIネットに掲載のあった物件情報を元に作成した参考ページです。
| 交通 |
山陽本線(中国)/万富駅
徒歩50分
山陽本線(中国)/瀬戸駅 徒歩8分 山陽本線(中国)/上道駅 バス13分:停歩5分 |
|---|---|
| 駐車場 | 駐車場あり |
| 環境 |
--
※部屋・階数により設備が異なる場合がございます。 |
| 建物設備 |
公営上水道
/
下水道
/
駐車場1台無料
/
駐輪場
※部屋・階数により設備が異なる場合がございます。 |
