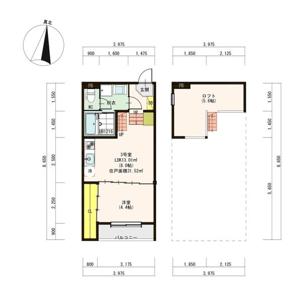
福田町二丁目集合住宅(宮城県仙台市宮城野区福田町2丁目)の建物情報
福田町二丁目集合住宅 賃貸物件基本情報
このページの情報は広告情報ではありません。過去から現在までCHINTAIネットに掲載のあった物件情報を元に作成した参考ページです。
| 交通 |
仙石線/福田町駅
徒歩13分
仙石線/陸前高砂駅 徒歩13分 仙石線/小鶴新田駅 徒歩29分 |
|---|---|
| 駐車場 | 駐車場あり |
| 環境 |
--
※部屋・階数により設備が異なる場合がございます。 |
| 建物設備 |
LPガス
/
電気
/
公営上水道
/
下水道
/
駐車場1台無料
※部屋・階数により設備が異なる場合がございます。 |
福田町二丁目集合住宅周辺の空室物件
仙台市宮城野区周辺が得意な不動産店舗
株式会社エイブルつつじが岡店
- オススメ
オススメポイント あなたのお部屋がココにある!エイブルつつじが岡店♪
- 交通
- 仙石線/榴ケ岡駅
- 所在地
- 宮城県仙台市宮城野区榴岡3-10-15榴岡レジデンス一番館1F
- 開店10年以上
- 駐車場有
- 仲介手数料家賃の55%以下
- 多店舗展開
掲載物件数:
3283
件
- 得意駅
- 榴ケ岡駅 宮城野原駅 陸前原ノ町駅 苦竹駅 小鶴新田駅 他
- 得意エリア
- 仙台市宮城野区 仙台市若林区 多賀城市 塩竈市 宮城郡七ヶ浜町 他
022-792-8160
