G-めぞん(三重県桑名市大字大福)の建物情報
G-めぞん 賃貸物件基本情報
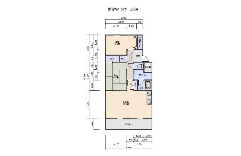
このページの情報は広告情報ではありません。過去から現在までCHINTAIネットに掲載のあった物件情報を元に作成した参考ページです。
| 交通 |
関西本線(東海)/桑名駅
徒歩35分
近鉄名古屋線/桑名駅 徒歩35分 近鉄名古屋線/益生駅 徒歩20分 三岐鉄道北勢線/西桑名駅 徒歩27分 三岐鉄道北勢線/馬道駅 徒歩26分 三岐鉄道北勢線/西別所駅 徒歩34分 |
|---|---|
| 駐車場 | 駐車場あり |
| 環境 |
3駅利用可
/
2沿線利用可
※部屋・階数により設備が異なる場合がございます。 |
| 建物設備 |
宅配ボックス
/
防犯カメラ
/
敷地内ごみ置き場
/
都市ガス
/
公営上水道
/
下水道
/
駐車2台可
/
駐輪場
※部屋・階数により設備が異なる場合がございます。 |
G-めぞん周辺の空室物件
桑名市周辺が得意な不動産店舗
- 交通
- 三岐鉄道北勢線/星川駅 近鉄名古屋線/桑名駅 養老鉄道養老線/播磨駅
- 所在地
- 三重県桑名市星川852-3
掲載物件数:
101
件
0594-33-4545
