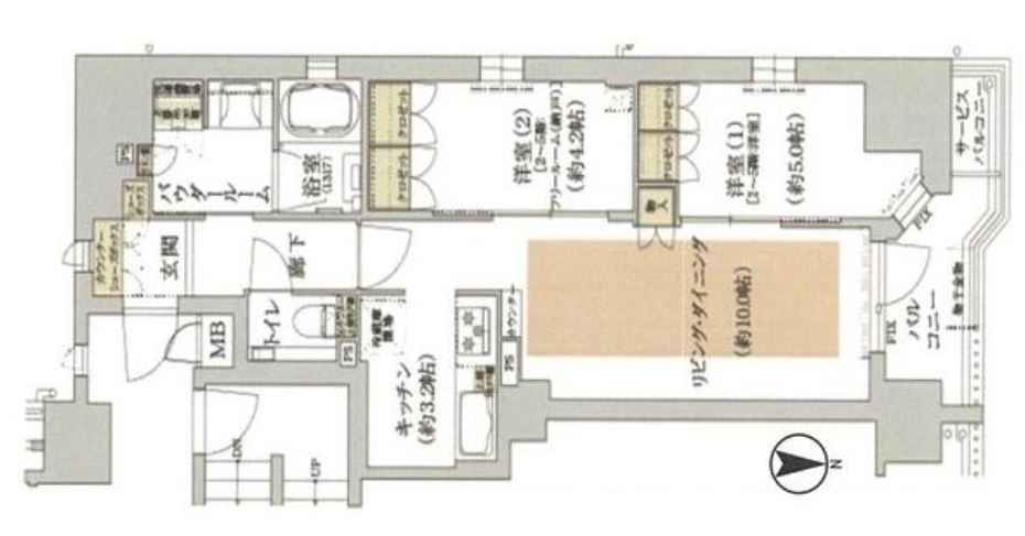
アクアプレイス京都二条城702(京都市中京区押西洞院町)の建物情報
アクアプレイス京都二条城702 賃貸物件基本情報
このページの情報は広告情報ではありません。過去から現在までCHINTAIネットに掲載のあった物件情報を元に作成した参考ページです。
| 交通 |
阪急京都線/烏丸駅
徒歩16分
京都市営地下鉄烏丸線/烏丸御池駅 徒歩6分 京都市営地下鉄東西線/烏丸御池駅 徒歩6分 京都市営地下鉄烏丸線/四条駅 徒歩16分 京都市営地下鉄東西線/二条城前駅 徒歩6分 |
|---|---|
| 駐車場 | 駐車場あり |
| 環境 |
--
※部屋・階数により設備が異なる場合がございます。 |
| 建物設備 |
オートロック
/
宅配ボックス
/
エレベーター
/
都市ガス
/
電気
/
公営上水道
/
下水道
/
駐輪場
※部屋・階数により設備が異なる場合がございます。 |
アクアプレイス京都二条城702周辺の空室物件
京都市中京区周辺が得意な不動産店舗
株式会社エイブル京都河原町店
- オススメ
オススメポイント 京都市内の賃貸物件は当店にお任せ下さい!!
- 交通
- 阪急京都線/京都河原町駅
- 所在地
- 京都府京都市中京区河原町通四条上る米屋町382サクラヤビル1F
- 仲介手数料家賃の55%以下
- 駅から徒歩3分以内
- 多店舗展開
- 開店10年以上
掲載物件数:
752
件
- 得意駅
- 京都河原町駅 祇園四条駅 三条駅 神宮丸太町駅 京都市役所前駅 他
- 得意エリア
- 京都市下京区 京都市上京区 京都市左京区 京都市中京区 京都市東山区 他
075-254-2370
