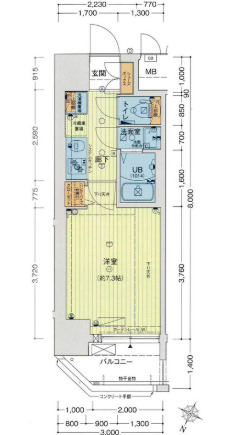
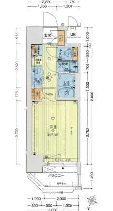
セオリー神戸クレール(705)(兵庫県神戸市中央区日暮通1丁目)の建物情報
セオリー神戸クレール(705) 賃貸物件基本情報
このページの情報は広告情報ではありません。過去から現在までCHINTAIネットに掲載のあった物件情報を元に作成した参考ページです。
| 交通 |
阪急神戸線/春日野道駅
徒歩6分
阪神本線/春日野道駅 徒歩3分 阪神本線/岩屋駅 徒歩12分 |
|---|---|
| 駐車場 | 駐車場あり |
| 環境 |
--
※部屋・階数により設備が異なる場合がございます。 |
| 建物設備 |
オートロック
/
宅配ボックス
/
防犯カメラ
/
エレベーター
/
敷地内ごみ置き場
/
集合郵便受け
/
都市ガス
/
電気
/
公営上水道
/
下水道
/
駐輪場
/
バイク置場
※部屋・階数により設備が異なる場合がございます。 |
セオリー神戸クレール(705)周辺の空室物件
神戸市中央区周辺が得意な不動産店舗
株式会社エイブル神戸三宮店
- オススメ
オススメポイント 誰もが住みたい神戸三宮♪最高のお部屋探しをサポートします♪
- 交通
- 東海道本線・山陽本線<JR神戸線>/三ノ宮駅
- 所在地
- 兵庫県神戸市中央区加納町4-3-2近藤ビル2F
- 女性スタッフ対応
- 仲介手数料家賃の55%以下
- 駅から徒歩3分以内
- 多店舗展開
掲載物件数:
1842
件
- 得意駅
- 神戸駅 新神戸駅 春日野道駅 三ノ宮駅 元町駅 他
- 得意エリア
- 神戸市中央区 神戸市灘区 神戸市兵庫区 神戸市東灘区 神戸市長田区 他
078-391-8126
