クローバーハイツ三宮(兵庫県神戸市中央区浜辺通3丁目)の建物情報
掲載中の賃貸物件は1件あります!
クローバーハイツ三宮 賃貸物件基本情報
| 交通 |
東海道本線<琵琶湖線・JR京都線>/三ノ宮駅
徒歩13分
東海道本線・山陽本線<JR神戸線>/三ノ宮駅 徒歩11分 東海道本線・山陽本線<JR神戸線>/元町駅 徒歩19分 阪急神戸線/神戸三宮駅 徒歩16分 阪神本線/神戸三宮駅 徒歩10分 神戸市営地下鉄北神・西神・山手線/三宮駅 徒歩10分 神戸新交通ポートアイランド線/貿易センター駅 徒歩3分 神戸市営地下鉄海岸線/三宮・花時計前駅 徒歩9分 |
|---|---|
| 駐車場 | 駐車場あり |
| 環境 |
3沿線駅利用可
/
駅前
/
平坦地
/
駅まで平坦
※部屋・階数により設備が異なる場合がございます。 |
| 建物設備 |
防犯カメラ
/
エレベーター
/
敷地内ごみ置き場
/
都市ガス
/
電気
/
公営上水道
/
下水道
※部屋・階数により設備が異なる場合がございます。 |
クローバーハイツ三宮 賃貸物件の空室情報
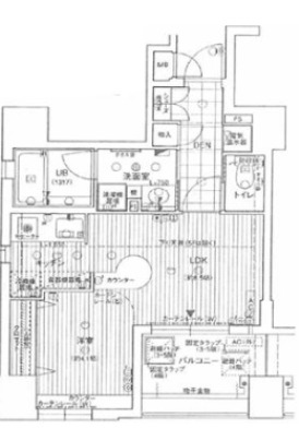
| 間取図 | 家賃 管理費等 |
敷金/保証金 礼金/償却 |
間取り 専有面積 |
方位物件 階層 |
詳細を見る お問い合わせする |
|---|---|---|---|---|---|
|
|
3.8万円 4,000円 |
--/-- --/-- |
1R 14.35㎡ |
北 8階 |
クローバーハイツ三宮周辺の空室物件
クローバーハイツ三宮周辺が得意な不動産店舗
オススメポイント SumoSumoで楽しくお部屋探し
- 交通
- 東海道本線・山陽本線<JR神戸線>/元町駅
- 所在地
- 兵庫県神戸市中央区北長狭通3丁目3-1
- 年中無休
- 駅から徒歩3分以内
- 開店10年以上
- 駅まで車で送迎可
掲載物件数:
6665
件
- 得意駅
- 神戸三宮駅
- 得意エリア
- 神戸市中央区 神戸市東灘区 神戸市灘区 神戸市兵庫区 神戸市長田区 他
078-600-0540
