スペーシア高羽(兵庫県神戸市灘区寺口町)の建物情報
掲載中の賃貸物件は5件あります!
スペーシア高羽 賃貸物件基本情報
| 交通 |
東海道本線<琵琶湖線・JR京都線>/六甲道駅
徒歩16分
東海道本線・山陽本線<JR神戸線>/六甲道駅 徒歩16分 阪急神戸線/御影駅 徒歩20分 阪急神戸線/六甲駅 徒歩10分 阪神本線/新在家駅 徒歩23分 |
|---|---|
| 駐車場 | 駐車場なし |
| 環境 |
2駅利用可
/
2沿線利用可
/
閑静な住宅地
※部屋・階数により設備が異なる場合がございます。 |
| 建物設備 |
オートロック
/
エレベーター
/
都市ガス
/
電気
/
公営上水道
/
下水道
/
平面駐車場
※部屋・階数により設備が異なる場合がございます。 |
スペーシア高羽 賃貸物件の空室情報
| 間取図 | 家賃 管理費等 |
敷金/保証金 礼金/償却 |
間取り 専有面積 |
方位物件 階層 |
詳細を見る お問い合わせする |
|---|---|---|---|---|---|
|
|
9.4万円 5,000円 |
なし/-- 150,000円/-- |
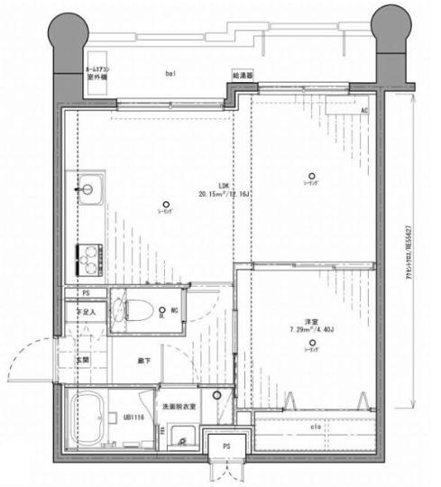
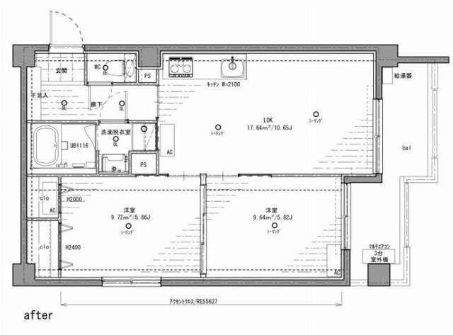
3LDK 54.59㎡ |
-- 3階 |
|
|
|
9.4万円 5,000円 |
--/-- 15万/-- |
3LDK 54.59㎡ |
南東 3階 |
|
|
|
9.4万円 5,000円 |
--/-- 15万/-- |
3LDK 54.59㎡ |
南東 3階 |
|
|
|
9.4万円 5,000円 |
--/-- 15万/-- |
3LDK 54.59㎡ |
南東 3階 |
|
|
|
9.4万円 5,000円 |
なし/-- 150,000円/-- |
3LDK 54.59㎡ |
-- 3階 |
スペーシア高羽周辺の空室物件
スペーシア高羽周辺が得意な不動産店舗
株式会社エイブル六甲道店
- オススメ
オススメポイント 六甲道で明るく楽しいお部屋探し♪オリジナル物件多数ございます
- 交通
- 東海道本線・山陽本線<JR神戸線>/六甲道駅
- 所在地
- 兵庫県神戸市灘区深田町4-1-1ウエルブ六甲道2番街1F
- 駐車場有
- 女性スタッフ対応
- 仲介手数料家賃の55%以下
- 駅から徒歩3分以内
掲載物件数:
970
件
- 得意駅
- 六甲駅 大石駅 岡本駅 御影駅 王子公園駅 他
- 得意エリア
- 神戸市灘区 神戸市東灘区 神戸市垂水区 神戸市北区 神戸市中央区 他
078-841-8126
