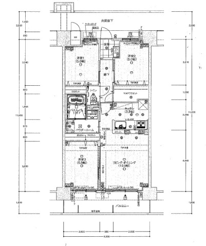
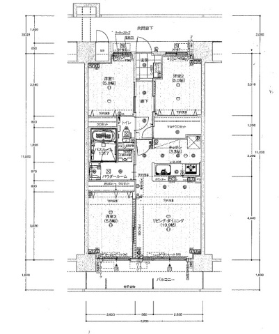
和光ハイツ(広島県尾道市高須町)の建物情報
和光ハイツ 賃貸物件基本情報
このページの情報は広告情報ではありません。過去から現在までCHINTAIネットに掲載のあった物件情報を元に作成した参考ページです。
| 交通 |
山陽新幹線(中国・九州)/新尾道駅
徒歩80分
山陽本線(中国)/松永駅 徒歩50分 山陽本線(中国)/東尾道駅 徒歩9分 |
|---|---|
| 駐車場 | 駐車場あり |
| 環境 |
--
※部屋・階数により設備が異なる場合がございます。 |
| 建物設備 |
LPガス
/
電気
/
公営上水道
/
浄水槽
/
駐車場1台無料
/
駐輪場
※部屋・階数により設備が異なる場合がございます。 |
