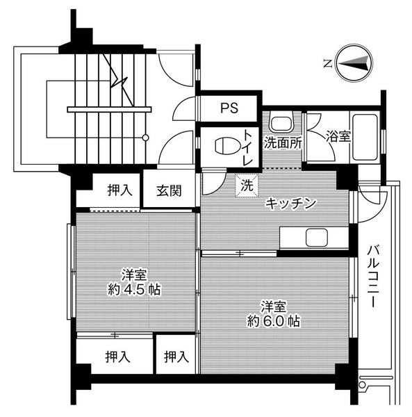
ビレッジハウス神辺第二(広島県福山市神辺町大字川北)の建物情報
ビレッジハウス神辺第二 賃貸物件基本情報
このページの情報は広告情報ではありません。過去から現在までCHINTAIネットに掲載のあった物件情報を元に作成した参考ページです。
| 交通 |
福塩線/神辺駅
徒歩18分
福塩線/湯田村駅 徒歩24分 井原鉄道井原線/湯野駅 徒歩12分 |
|---|---|
| 駐車場 | 駐車場あり |
| 環境 |
3駅利用可
/
2沿線利用可
※部屋・階数により設備が異なる場合がございます。 |
| 建物設備 |
LPガス
/
公営上水道
/
浄水槽
/
駐車2台可
※部屋・階数により設備が異なる場合がございます。 |
ビレッジハウス神辺第二周辺の空室物件
福山市周辺が得意な不動産店舗
株式会社アークスエイブルネットワーク 福山新涯店
- オススメ
- キャンペーン
オススメポイント お部屋探しはエイブル^^福山南エリア芦田川大橋からすぐ♪
- 交通
- 山陽本線(中国)/福山駅
- 所在地
- 広島県福山市新涯町6丁目1-26
- 多店舗展開
- 駅まで車で送迎可
- 駐車場有
- 開店10年以上
- キャンペーン
- キャンペーン実施中!
掲載物件数:
1002
件
- 得意駅
- 福山駅 東福山駅
- 得意エリア
- 福山市 尾道市 府中市 笠岡市 井原市 他
084-971-3220
