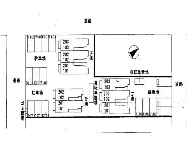
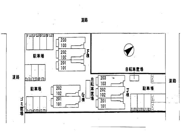
ウィステリアA(広島県福山市新涯町5丁目)の建物情報
ウィステリアA 賃貸物件基本情報
このページの情報は広告情報ではありません。過去から現在までCHINTAIネットに掲載のあった物件情報を元に作成した参考ページです。
| 交通 |
山陽本線(中国)/福山駅
徒歩61分
|
|---|---|
| 駐車場 | 駐車場あり |
| 環境 |
--
※部屋・階数により設備が異なる場合がございます。 |
| 建物設備 |
LPガス
/
公営上水道
/
下水道
/
駐輪場
※部屋・階数により設備が異なる場合がございます。 |
ウィステリアA周辺の空室物件
福山市周辺が得意な不動産店舗
株式会社アークスエイブルネットワーク神辺店
- オススメ
- キャンペーン
オススメポイント お部屋探しはエイブル^^フジグランすぐ近く緑の看板が目印♪
- 交通
- 福塩線/道上駅
- 所在地
- 広島県福山市神辺町新十九1-17
- 多店舗展開
- 年中無休
- 駅まで車で送迎可
- 駐車場有
- キャンペーン
- キャンペーン実施中!
掲載物件数:
2821
件
- 得意駅
- 神辺駅 万能倉駅 駅家駅 福山駅 湯野駅 他
- 得意エリア
- 尾道市 福山市 府中市 笠岡市 井原市 他
084-966-9655
