ウィステリアB(DK)(広島県福山市新涯町5丁目)の建物情報
ウィステリアB(DK) 賃貸物件基本情報
このページの情報は広告情報ではありません。過去から現在までCHINTAIネットに掲載のあった物件情報を元に作成した参考ページです。
| 交通 |
山陽本線(中国)/福山駅
バス15分:停歩3分
|
|---|---|
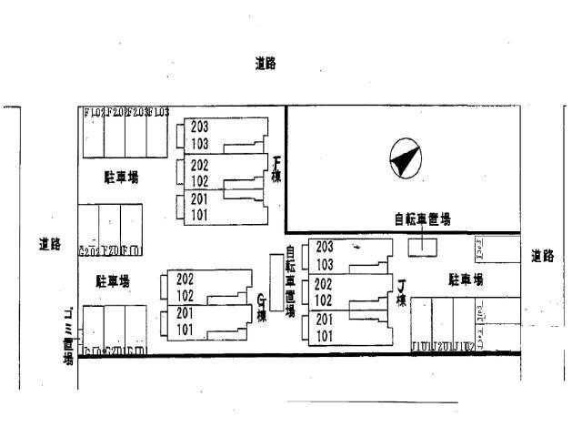
| 駐車場 | 駐車場あり |
| 環境 |
--
※部屋・階数により設備が異なる場合がございます。 |
| 建物設備 |
24時間ゴミ出し可
/
敷地内ごみ置き場
/
LPガス
/
電気
/
公営上水道
/
下水道
/
駐輪場
※部屋・階数により設備が異なる場合がございます。 |
ウィステリアB(DK)周辺の空室物件
福山市周辺が得意な不動産店舗
オススメポイント お部屋探しはエイブル^^福山南エリア芦田川大橋からすぐ♪
- 交通
- 山陽本線(中国)/福山駅
- 所在地
- 広島県福山市新涯町6丁目1-26
- 多店舗展開
- 駅まで車で送迎可
- 駐車場有
- 開店10年以上
掲載物件数:
1002
件
- 得意駅
- 福山駅
- 得意エリア
- 福山市 尾道市 三原市 府中市
084-971-3220
